168 Walk In Water Creek Road, LAKE WALES, FL 33898
Active
Property Photos
Would you like to sell your home before you purchase this one?
Priced at Only: $250,000
For more Information Call:
Address: 168 Walk In Water Creek Road, LAKE WALES, FL 33898
Property Location and Similar Properties
- MLS#: L4958652 ( Land )
- Street Address: 168 Walk In Water Creek Road
- Viewed: 36
- Price: $250,000
- Price sqft: $0
- Waterfront: No
- Year Built: Not Available
- Bldg sqft: 0
- Days On Market: 57
- Additional Information
- Geolocation: 27.8698 / -81.395
- County: POLK
- City: LAKE WALES
- Zipcode: 33898
- Subdivision: Walkinwater Crk
- Provided by: EXP REALTY LLC
- Contact: Duy Nguyen
- 888-883-8509

- DMCA Notice
-
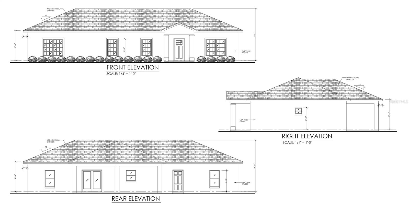
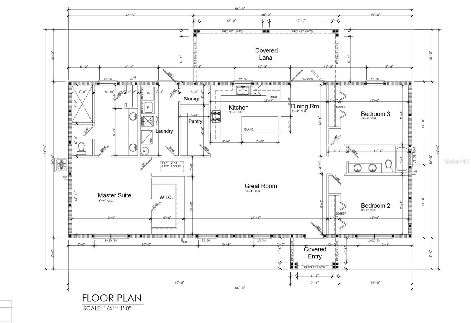
DescriptionRare opportunity to own 4.67 acres with creek access on Walk In Water Creek in Lake Wales, complete with a new artesian well, paid impact fees, and over $50,000 in upfront improvements already handled. House plans for a 3 bedroom, 2 bath, 1,980 sq ft home are included, and the foundation is already startedsaving valuable time and money. Whether you're an investor or builder seeking a shovel ready project, or a buyer ready to build your dream home in a peaceful setting, this property offers unmatched flexibility: continue with the current plans or bring your own vision. With no HOA, a private setting, survey and elevation report included, and eligibility for FHA, VA, or USDA construction to perm financing, this is a truly rare and ready to go opportunity.
Payment Calculator
- Principal & Interest -
- Property Tax $
- Home Insurance $
- HOA Fees $
- Monthly -
Features
Building and Construction
- Covered Spaces: 0.00
- Living Area: 0.00
- Other Structures: Workshop
Garage and Parking
- Garage Spaces: 0.00
- Open Parking Spaces: 0.00
Eco-Communities
- Water Source: Well
Utilities
- Carport Spaces: 0.00
- Sewer: Septic Needed
- Utilities: Private
Finance and Tax Information
- Home Owners Association Fee: 0.00
- Insurance Expense: 0.00
- Net Operating Income: 0.00
- Other Expense: 0.00
- Tax Year: 2025
Other Features
- Country: US
- Current Use: Residential
- Legal Description: WALK-IN-WATER CREEK SUB PB 72 PG 6 LOT 11
- Area Major: 33898 - Lake Wales
- Parcel Number: 29-30-14-992600-000110
- Possession: Close Of Escrow
- Views: 36
Similar Properties
Nearby Subdivisions
0000122782
Central Lake Estates
Cherry Pocket Sub
Glen St Mary Sub
Golf View Park Resub
Hendry G W Sub
Highland Park Pines Sub
Highland Park Sub
Indian Lake Estates
Lake Hills Country Estates
Lake Haven Acres
Lake Mabel Heights
Lake Pierce Heights Resub Pt
Lake Pierce Ranchettes Second
Lake Wales
Landings At Lake Easy
Moneytree Ranchettes Sub
None
Nonresidential Condo
Not Applicable
Not In Subdivision
Outdoor Resorts River Ranch Rv
Resort At Canopy Oaks
Revised Hesperides Sub
River Ranch
River Ranch Propety Owners Ass
River Ranch Shores
Rolling Hills
Saddlebag Lake
South Shore Oaks Rep
South Shore Oaks Rep 02
South Shore Resort An Rv Condo
Three Lakes Estates
Tiger Creek Forest
Tiger Creek Groves
Timberlake Sub
Tioti Beach Estates
Tiotie Beach Estates
Walk In Water Lake Estates Ph
Walkinwater Crk
Woodlands
- One Click Broker
- 800.557.8193
- Toll Free: 800.557.8193
- billing@brokeridxsites.com


























