3800 Gerber Dairy Road, WINTER HAVEN, FL 33880
Active
Property Photos
Would you like to sell your home before you purchase this one?
Priced at Only: $1,450,000
For more Information Call:
Address: 3800 Gerber Dairy Road, WINTER HAVEN, FL 33880
Property Location and Similar Properties
- MLS#: L4958470 ( Residential )
- Street Address: 3800 Gerber Dairy Road
- Viewed: 8
- Price: $1,450,000
- Price sqft: $413
- Waterfront: No
- Year Built: 2014
- Bldg sqft: 3510
- Bedrooms: 3
- Total Baths: 2
- Full Baths: 2
- Garage / Parking Spaces: 2
- Days On Market: 2
- Additional Information
- Geolocation: 27.9366 / -81.7521
- County: POLK
- City: WINTER HAVEN
- Zipcode: 33880
- Elementary School: Wahneta Elem
- Middle School: Westwood
- High School: Lake Region
- Provided by: THE STONES REAL ESTATE FIRM
- Contact: Deanna Stone
- 863-412-2080

- DMCA Notice
-
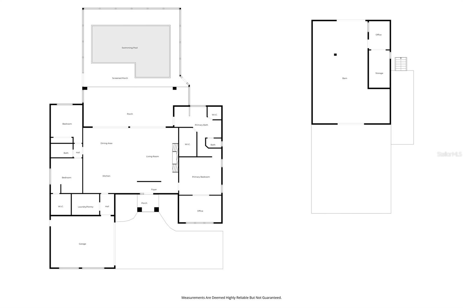
DescriptionTucked behind a private gated entry, this extraordinary30+ acre estatedelivers an exceptional blend of luxury, privacy, and purposeful designperfectly suited for anequestrian farm, cattle ranch, or refined country retreat with no HOA. The property features a custom built pool home, a 30'x40' barn with a furnished apartment and a detached climate controlled building, all thoughtfully designed to provide flexible options for multi generational living, guest accommodations, or income potential within a refined yet highly functional setting. The 2014 custom built residence offers an open layout with a great room, dining area, spacious kitchen, split bedrooms, primary suite with an office, expansive laundry room, oversized lanai and a 2 car garage. The great room is a stunning focal point, highlighted by an electric fireplace with heat, set against a striking bamboo and tile feature wall with integrated lighting and outlets. Triple stacking sliding glass doors with transom windows flood the home with natural light while showcasing sweeping views of the pool and pasture. The well appointed kitchenflows seamlessly into the great room and dining area and features custom cabinetry, quartz counters, stainless appliances, double ovens, walk in pantry and a generous island with gas cooktop and seating for four. The dining area comfortably accommodates eight and opens to the lanai by an additional set of sliders, creating an effortless indoor outdoor connection for entertaining. Theprimary suiteis a luxurious retreat offering an office space with an 8 foot openingeasy to enclose for privacy. The suite is completed by 2 spacious walk in closets with built ins and a spa inspired bath with a granite counter, dual sinks, a soaking tub, walk in shower, and private water closet. Secondary bedrooms offer ample space and versatility, including built in storage and a thoughtfully designed bunk room with integrated study and play areas and a walk in safe closet. Step outside to thescreen enclosed lanai, where resort style living takes center stage. Enjoy a salt filtered, heated pool, an outdoor kitchen with a granite counter, grill, sink, cooktop, fridge, outdoor shower and a gas fireplaceperfect for year round enjoyment. A backyard fire pit adds an additional gathering space under the stars. The estate continues with an impressivebarnoffering flexible use for equipment, hobbies, or easy conversion to horse stalls and a tack room, complete with an air conditioned office. Above the barn, a beautifully finishedone bedroom apartmentfeatures a living room, full kitchen, stackable washer and dryer and a private deck overlooking the serene pastureideal for guests. The 14'x24' detached, climate controlled building features a half bath and internet connectivity, making it ideal for a private studio, home office or she shed. The land includes a cross fenced pasture with a livestock pen, persimmon trees, greenhouse with electricity, RV electrical hookup and two chicken coops. Additional highlights; anew roof (2024), paved driveway, water softener, irrigation system, two tankless gas water heaters, generator connection and foam insulated panels for energy efficiency. Set in a tranquil country setting yet just 10 minutes from shopping, dining, schools and Bartow Executive Airport and centrally located between Tampa and Orlando, this remarkable estate offers the freedom to ride ATVs, store recreational toys and enjoy wide open acreage without compromise.
Payment Calculator
- Principal & Interest -
- Property Tax $
- Home Insurance $
- HOA Fees $
- Monthly -
Features
Building and Construction
- Covered Spaces: 0.00
- Exterior Features: Balcony, Fire Pit, Lighting, Outdoor Grill, Outdoor Kitchen, Outdoor Shower, Private Entrance, Private Mailbox, Rain Gutters, RV Hookup, Sliding Doors, Storage
- Fencing: Cross Fenced, Fenced, Wire
- Flooring: Laminate, Luxury Vinyl
- Living Area: 2406.00
- Other Structures: Barn(s), Greenhouse, Guest House, Outdoor Kitchen, Storage
- Roof: Shingle
Land Information
- Lot Features: In County, Landscaped, Level, Oversized Lot, Pasture, Private, Street Dead-End, Paved, Zoned for Horses
School Information
- High School: Lake Region High
- Middle School: Westwood Middle
- School Elementary: Wahneta Elem
Garage and Parking
- Garage Spaces: 2.00
- Open Parking Spaces: 0.00
- Parking Features: Boat, Driveway, Garage Faces Side, Golf Cart Parking, Guest, RV Access/Parking
Eco-Communities
- Pool Features: Fiber Optic Lighting, Heated, In Ground, Lighting, Outside Bath Access, Salt Water, Screen Enclosure
- Water Source: Private, Well
Utilities
- Carport Spaces: 0.00
- Cooling: Central Air
- Heating: Central
- Pets Allowed: Cats OK, Dogs OK, Yes
- Sewer: Septic Tank
- Utilities: BB/HS Internet Available, Electricity Connected, Propane, Sprinkler Well
Finance and Tax Information
- Home Owners Association Fee: 0.00
- Insurance Expense: 0.00
- Net Operating Income: 0.00
- Other Expense: 0.00
- Tax Year: 2025
Other Features
- Appliances: Built-In Oven, Convection Oven, Cooktop, Dishwasher, Dryer, Exhaust Fan, Gas Water Heater, Microwave, Range Hood, Refrigerator, Tankless Water Heater, Washer, Water Softener
- Country: US
- Furnished: Negotiable
- Interior Features: Built-in Features, Ceiling Fans(s), High Ceilings, Kitchen/Family Room Combo, Open Floorplan, Primary Bedroom Main Floor, Solid Surface Counters, Split Bedroom, Stone Counters, Walk-In Closet(s), Window Treatments
- Legal Description: LOT 14 OF UNRE SURVEY DESC AS COMM AT NW COR OF SEC RUN E 2200.59 FT TO POB CONT E 167.90 FT S 1298.02 FT TO NLY R/W GERBER DAIRY RD W ALONG R/W 167.91 FT N 1296.52 FT TO POB
- Levels: One
- Area Major: 33880 - Winter Haven/Eloise/JPV/Wahnetta
- Occupant Type: Owner
- Parcel Number: 26-29-30-000000-031080
- Possession: Close Of Escrow
- Style: Custom
- View: Pool, Trees/Woods
Nearby Subdivisions
Almeda Park
Beymer Stoner Sub
Brandy Chase Village A Rep
Brogden Point Sub
Bryson R H Subdivision
Central Pointe
Cooper Estates
Country Walk Estates Ph 03
Country Walk Ph 02
Country Walk Ph 03
Coventry Cove Ph Ii
Deer Lake Terrace Sub
Denison Heights Estates Rep Pt
Eagle Heights
Eagle Landing Phase Ii
Eagle Lndg Ph Ib
Edgewood Or Stone Manns
Elbert Hills
Emerald Acres
Emerald Estates
Gardens Ph 01
Gardens Ph 2
Grubbs Nilon
Harmony On Lake Eloise Phase 4
Haven Homes Sub
Hoffmans Subdivision And Lake
Jan Phyl Village
Jan-phyl Village
Kensington View
Kings Court
Kings Pond Ph 02
Laha Wa Manor
Lake Add
Lake Deer
Lake Deer Ph 2
Lake Idyll Estates
Lake Lulu Terrace
Lake Thomas Estates
Lake Thomas Woods Add 03
Lake Thomas Woods Sixth Add
Lathers Grove Sub
Lawing Sub
Leslie J A
Leslie J A Sub
Lesnick Park
Madera Park Sub
Magnolia Preserve Ph 4
Mayfair On Lake Ph 01
Mayfair Rep
Mayfair Sub
None
Oakview
Oakwood Estates
Oakwood Ests
Orangewood Add
Osprey Landings Ph 01
Parkland Village
Pinecrest Add
Plaza Sub
Queens Cove
Queens Cove Ph 04
Ridge Acres Ph 02
Ridge Acres Ph Ii
Shadow Wood
Shores At Lake Sears
Solis Gardens
South College
South Winter Haven Ext
Southeast Terrace
Spirit Lndgs
Squires Grove
Squires Grove Ph 2
Stonebridge Vls Ph 02
Sun Rdg Village East
Sun Ridge Village Ph 01
Sutton Preserve
Thornhill Oaks
Tranquility Park 02 Rep
Varner Heights
Village Spirit Lake Ph 01
Villagecrystal Beach
Wahneta Farms
Waterside Village
Way Sub
West Of Lake Howard
West Winter Haven
West Winter Haven Rep
Woodmere
- One Click Broker
- 800.557.8193
- Toll Free: 800.557.8193
- billing@brokeridxsites.com





































































































