1554 Lunn Woods Trail, LAKELAND, FL 33811
Active
Property Photos
Would you like to sell your home before you purchase this one?
Priced at Only: $299,900
For more Information Call:
Address: 1554 Lunn Woods Trail, LAKELAND, FL 33811
Property Location and Similar Properties
- MLS#: L4957826 ( Residential )
- Street Address: 1554 Lunn Woods Trail
- Viewed: 65
- Price: $299,900
- Price sqft: $139
- Waterfront: No
- Year Built: 2022
- Bldg sqft: 2160
- Bedrooms: 4
- Total Baths: 3
- Full Baths: 3
- Days On Market: 116
- Additional Information
- Geolocation: 27.9508 / -81.9838
- County: POLK
- City: LAKELAND
- Zipcode: 33811
- Subdivision: Lunn Woods
- Elementary School: Medulla Elem
- Middle School: Southwest
- High School: George Jenkins
- Provided by: EXP REALTY LLC
- Contact: Gaby Murillo
- 888-883-8509

- DMCA Notice
-
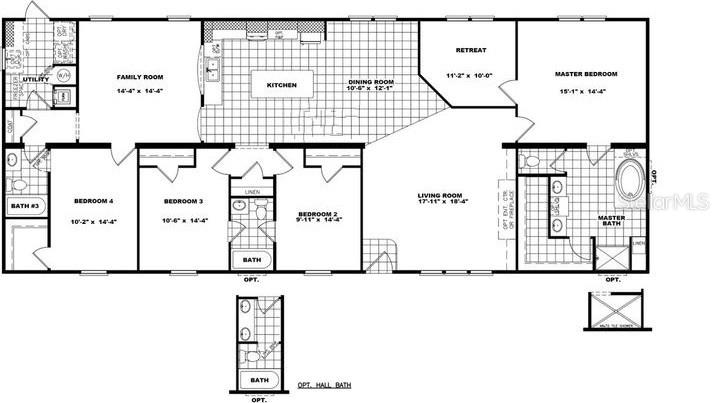
DescriptionOne or more photo(s) has been virtually staged. Short Sale. THIS ONE HAS EVERYTHING YOU ARE LOOKING FOR!!! NOT HOA & NOT CDD. Welcome to this beautiful double wide mobile home, a modern marvel built in 2022 located in South Lakeland. Spanning over 2000 square feet, this spacious residence offers 4 bedrooms and 3 full bathrooms, making it an ideal retreat for families of all sizes. The home is nestled on a stunning 1.40 acre lot, providing ample outdoor space for recreation and relaxation. The master bedroom is a true sanctuary, featuring a den or retreat room that can easily be transformed into an office or nursery to suit your needs. The master suite also boasts a generous walk in closet and high ceilings, adding to the sense of space and luxury. The living areas are designed for comfort and functionality, with a living room and family room providing plenty of space for both casual gatherings and formal entertaining. The heart of this home is the kitchen, which is both practical and beautiful. It features an island, perfect for meal prep and casual dining, and is equipped with stainless steel appliances that add a touch of modern elegance. The kitchen's thoughtful design ensures a comfortable and efficient cooking experience. The home also includes a convenient laundry room, enhancing your daily routine. With three full bathrooms, including a Jack and Jill bathroom, this home offers convenience and privacy for everyone. High ceilings throughout the home, along with crown molding, contribute to an open and airy atmosphere. Outside, you'll find a new shade structure in the backyard, providing a perfect spot for outdoor activities and relaxation. This property truly combines modern living with the tranquility of a spacious lot. Don't miss the opportunity to make this exceptional mobile home your own. Schedule a viewing today and experience the perfect blend of comfort, style, and functionality.
Payment Calculator
- Principal & Interest -
- Property Tax $
- Home Insurance $
- HOA Fees $
- Monthly -
Features
Building and Construction
- Covered Spaces: 0.00
- Exterior Features: Storage
- Flooring: Carpet, Laminate
- Living Area: 2160.00
- Other Structures: Shed(s)
- Roof: Shingle
Land Information
- Lot Features: Paved
School Information
- High School: George Jenkins High
- Middle School: Southwest Middle School
- School Elementary: Medulla Elem
Garage and Parking
- Garage Spaces: 0.00
- Open Parking Spaces: 0.00
Eco-Communities
- Water Source: Well
Utilities
- Carport Spaces: 0.00
- Cooling: Central Air
- Heating: Central
- Sewer: Septic Tank
- Utilities: Electricity Connected
Finance and Tax Information
- Home Owners Association Fee: 0.00
- Insurance Expense: 0.00
- Net Operating Income: 0.00
- Other Expense: 0.00
- Tax Year: 2024
Other Features
- Appliances: Dishwasher, Electric Water Heater, Microwave, Range, Refrigerator
- Country: US
- Furnished: Unfurnished
- Interior Features: Ceiling Fans(s), Crown Molding, Eat-in Kitchen, High Ceilings
- Legal Description: LUNN WOODS PB 81 PGS 12 & 13 LOT 31
- Levels: One
- Area Major: 33811 - Lakeland
- Occupant Type: Vacant
- Parcel Number: 23-29-23-141803-000310
- Views: 65
Similar Properties
- One Click Broker
- 800.557.8193
- Toll Free: 800.557.8193
- billing@brokeridxsites.com
































































