Michigan Avenue, KISSIMMEE, FL 34744
Active
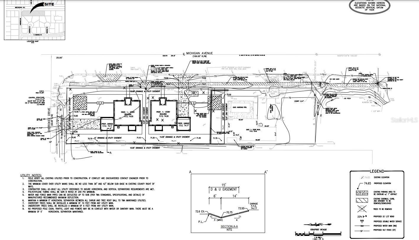
Property Photos
Would you like to sell your home before you purchase this one?
Priced at Only: $180,000
For more Information Call:
Address: Michigan Avenue, KISSIMMEE, FL 34744
Property Location and Similar Properties
- MLS#: S5142122 ( Land )
- Street Address: Michigan Avenue
- Viewed: 26
- Price: $180,000
- Price sqft: $0
- Waterfront: No
- Year Built: Not Available
- Bldg sqft: 0
- Days On Market: 76
- Additional Information
- Geolocation: 28.3218 / -81.3913
- County: OSCEOLA
- City: KISSIMMEE
- Zipcode: 34744
- Subdivision: Michigan Oaks
- Provided by: REMAX PREMIER PROPERTIES
- Contact: Julio Salgado
- 407-343-4245

- DMCA Notice
-
DescriptionBuild Your Dream Home and Invest in Prime Real Estate! Corner Lot with Seller Financing Available! Dont miss this exceptional opportunity to build your dream home on a prime corner lot! These two approved and permitted lots are ready for immediate construction, eliminating extra work and delays. Key Features: Prime Location: Conveniently located near Osceola Parkway, Turnpike, E. Irlo Bronson, major roads, and shopping centers. Ready to Build: Permits and county approvals are already in place, so you can start building your dream home right away. No HOA: Enjoy the freedom of no Homeowners Association restrictions. Whether youre a home buyer, land buyer, or investor, this opportunity is perfect for you. With seller financing available, making this investment is easier than ever. What are you waiting for? Start building your future today! 2 Lots are avaliable for sale. Tax ID: MICHIGAN OAKS PB 29 PG 168 LOT 1 15 25 29 4131 0001 0010 ///// MICHIGAN OAKS PB 29 PG 168 LOT 2 15 25 29 4131 0001 0020
Payment Calculator
- Principal & Interest -
- Property Tax $
- Home Insurance $
- HOA Fees $
- Monthly -
Features
Building and Construction
- Covered Spaces: 0.00
- Living Area: 0.00
Land Information
- Lot Features: In County
Garage and Parking
- Garage Spaces: 0.00
- Open Parking Spaces: 0.00
Eco-Communities
- Water Source: Public
Utilities
- Carport Spaces: 0.00
- Road Frontage Type: Access Road
- Sewer: Public Sewer
- Utilities: Public
Finance and Tax Information
- Home Owners Association Fee: 0.00
- Insurance Expense: 0.00
- Net Operating Income: 0.00
- Other Expense: 0.00
- Tax Year: 2025
Other Features
- Country: US
- Current Use: Residential
- Legal Description: MICHIGAN OAKS PB 29 PG 168 LOT 2
- Area Major: 34744 - Kissimmee
- Parcel Number: 15-25-29-4131-0001-0020
- Possession: Close Of Escrow
- Views: 26
- Zoning Code: RES
Similar Properties
- One Click Broker
- 800.557.8193
- Toll Free: 800.557.8193
- billing@brokeridxsites.com










