274 Kings Highway, CENTER HILL, FL 33514
Active
Property Photos
Would you like to sell your home before you purchase this one?
Priced at Only: $399,000
For more Information Call:
Address: 274 Kings Highway, CENTER HILL, FL 33514
Property Location and Similar Properties
- MLS#: G5106844 ( Residential )
- Street Address: 274 Kings Highway
- Viewed: 19
- Price: $399,000
- Price sqft: $109
- Waterfront: No
- Year Built: 1960
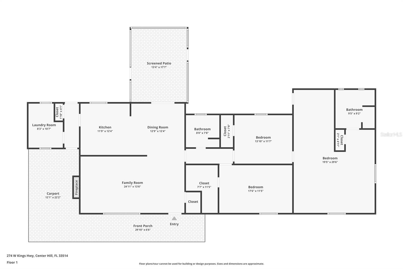
- Bldg sqft: 3654
- Bedrooms: 3
- Total Baths: 2
- Full Baths: 2
- Garage / Parking Spaces: 1
- Days On Market: 56
- Additional Information
- Geolocation: 28.6505 / -82.0024
- County: SUMTER
- City: CENTER HILL
- Zipcode: 33514
- Subdivision: Cinter Hill
- Provided by: CONNIE MAHAN REAL ESTATE GROUP
- Contact: Connie Mahan
- 352-569-0233

- DMCA Notice
-
DescriptionRECENT APPRAISAL 482know priced at 409k for quick sale! Flexible Owner Occupant Opportunity with Neighborhood Commercial Opportunity. Located within the City of Center Hill and fronting W Kings Highway, this unique property offers a rare opportunity for buyers seeking to live, operate, and grow in place. Improved with an existing residence, the site provides immediate usability while also presenting an opportunity for Neighborhood Commercial (CN) zoning. This corridor supports a strong, built in employee base tied to nearby agricultural, processing, manufacturing, and service employers, creating consistent demand for everyday services and convenience based uses. The property is well suited for owner occupied professional or service operations such as a small medical or wellness practice, barber or salon, office based business, instructional or training use, or similar low impact commercial activity compatible with neighborhood commercial intent. A particularly compelling opportunity exists for owner operators with mobile or service based businesses, including food truck owners. The layout allows for on site living while operating a lunch or daytime service model that caters directly to nearby workersoffering a rare blend of residential comfort and business visibility along a well traveled collector roadway connecting Sumter and Lake Counties. Unlike raw land or speculative commercial sites, this property allows a buyer to operate immediately, control occupancy costs, and retain long term flexibility as the surrounding corridor continues to evolve. Operate Now. Adapt Later. Serve a Built In Workforce. Just over 1 acre with W Kings Hwy Frontage. Call today!
Payment Calculator
- Principal & Interest -
- Property Tax $
- Home Insurance $
- HOA Fees $
- Monthly -
Features
Building and Construction
- Covered Spaces: 0.00
- Exterior Features: Storage
- Flooring: Ceramic Tile, Wood
- Living Area: 2135.00
- Other Structures: Storage, Workshop
- Roof: Metal
Property Information
- Property Condition: Completed
Land Information
- Lot Features: City Limits, In County, Paved
Garage and Parking
- Garage Spaces: 0.00
- Open Parking Spaces: 0.00
- Parking Features: Covered
Eco-Communities
- Pool Features: Fiberglass, In Ground
- Water Source: Public
Utilities
- Carport Spaces: 1.00
- Cooling: Central Air
- Heating: Central, Electric
- Sewer: Septic Tank
- Utilities: BB/HS Internet Available, Electricity Connected
Finance and Tax Information
- Home Owners Association Fee: 0.00
- Insurance Expense: 0.00
- Net Operating Income: 0.00
- Other Expense: 0.00
- Tax Year: 2025
Other Features
- Appliances: Built-In Oven, Cooktop, Dishwasher, Electric Water Heater, Microwave, Range Hood, Refrigerator
- Country: US
- Furnished: Unfurnished
- Interior Features: Built-in Features, Ceiling Fans(s), Solid Wood Cabinets, Stone Counters, Walk-In Closet(s)
- Legal Description: THAT PORTION OF LOT 242 NEW PLAT OF CENTER HILL PB 1 PG 78 DESC AS: COMM AT AN UNCAPPED IRON ROD AT INTERSECTION OF N R/W LINE OF CR 48 WITH W LNE OF LOT 234 OF SAID NEW PLAT OF CENTER HILL THENCE RUN N 89 DEG 43'30" W 30.00 FT TO E LINE OF SAID LOT 242 THENCE CONT N 89 DEG 43'30" W 359.40 FT TO POB CONT N 89 DEG 43'30" W 173.34 FT N 00 DEG 16'30" E 304.02 FT S 89 DEG 43'30" E 129.25 FT S 42 DEG 39'51" E 64.72 FT S 00 DEG 16'30" W 256.64 FT TO POB
- Levels: One
- Area Major: 33514 - Center Hill
- Occupant Type: Vacant
- Parcel Number: Q22A258
- Views: 19
- Zoning Code: RR
Nearby Subdivisions
- One Click Broker
- 800.557.8193
- Toll Free: 800.557.8193
- billing@brokeridxsites.com




























































