3927 10th Avenue N, ST PETERSBURG, FL 33713
Active
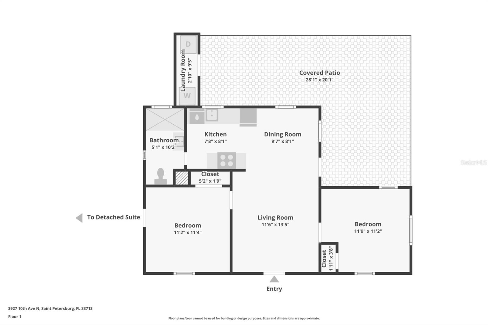
Property Photos
Would you like to sell your home before you purchase this one?
Priced at Only: $329,000
For more Information Call:
Address: 3927 10th Avenue N, ST PETERSBURG, FL 33713
Property Location and Similar Properties
- MLS#: TB8473339 ( Residential )
- Street Address: 3927 10th Avenue N
- Viewed: 1
- Price: $329,000
- Price sqft: $269
- Waterfront: No
- Year Built: 1955
- Bldg sqft: 1222
- Bedrooms: 2
- Total Baths: 2
- Full Baths: 1
- 1/2 Baths: 1
- Garage / Parking Spaces: 1
- Days On Market: 1
- Additional Information
- Geolocation: 27.7821 / -82.6869
- County: PINELLAS
- City: ST PETERSBURG
- Zipcode: 33713
- Subdivision: Corsons Sub
- Elementary School: Mount Vernon
- Middle School: Tyrone
- High School: St. Petersburg
- Provided by: REDFIN CORPORATION
- Contact: Sylvia Haddad
- 617-458-2883

- DMCA Notice
-
DescriptionOne or more photo(s) has been virtually staged. This fantastic property offers classic charm and modern peace of mind in a prime St. Petersburg location. The two bedroom, one bath main residence shines with original wood flooring, a fresh interior and exterior paint palette, and updated windows throughout. The heart of the home is highlighted by a modernized kitchen with new cabinetry and appliances, as well as a bathroom featuring a stylish new vanity. Transitioning outside, youll discover a private, tropical oasis anchored by an expansive backyard and a saltwater pool installed in 2021, all kept lush by a dedicated well irrigation system. Tucked away for maximum privacy is a versatile detached STUDIO, providing a perfect creative retreat or home office complete with a bedroom, half bath, and a private outdoor shower. An attached carport and an automatic gate leading to rear alley access round out the list of features. Situated less than half a block from the scenic Jorgensen Lake and Park and within easy walking distance of the St. Petersburg Library, this home offers an unparalleled lifestyle of comfort and recreation.
Payment Calculator
- Principal & Interest -
- Property Tax $
- Home Insurance $
- HOA Fees $
- Monthly -
Features
Building and Construction
- Covered Spaces: 0.00
- Exterior Features: Private Entrance, Private Mailbox, Private Yard
- Fencing: Fenced
- Flooring: Tile, Wood
- Living Area: 696.00
- Other Structures: Workshop
- Roof: Shingle
Land Information
- Lot Features: City Limits, Landscaped, Near Public Transit
School Information
- High School: St. Petersburg High-PN
- Middle School: Tyrone Middle-PN
- School Elementary: Mount Vernon Elementary-PN
Garage and Parking
- Garage Spaces: 0.00
- Open Parking Spaces: 0.00
- Parking Features: Covered, On Street
Eco-Communities
- Pool Features: In Ground, Salt Water
- Water Source: Public
Utilities
- Carport Spaces: 1.00
- Cooling: Central Air, Mini-Split Unit(s)
- Heating: Electric
- Sewer: Public Sewer
- Utilities: Electricity Connected, Public, Sewer Connected, Water Connected
Finance and Tax Information
- Home Owners Association Fee: 0.00
- Insurance Expense: 0.00
- Net Operating Income: 0.00
- Other Expense: 0.00
- Tax Year: 2024
Other Features
- Appliances: Dryer, Electric Water Heater, Exhaust Fan, Range, Refrigerator, Washer
- Country: US
- Furnished: Unfurnished
- Interior Features: Ceiling Fans(s), Eat-in Kitchen, Kitchen/Family Room Combo, Open Floorplan, Primary Bedroom Main Floor, Stone Counters, Thermostat, Walk-In Closet(s)
- Legal Description: CORSON'S SUB BLK 20, LOT 13
- Levels: One
- Area Major: 33713 - St Pete
- Occupant Type: Vacant
- Parcel Number: 15-31-16-18288-020-0130
- View: Garden, Pool, Trees/Woods
Similar Properties
Nearby Subdivisions
30th Ave Sub Extension
Arnoldpollards Sub 1
Avalon
Avalon Sub 2
Avalon Sub 3
Beever O A Sub
Broadacres
Brunson Sub
Brunsons 4 Add
Central Ave Heights
Central Park Rev
Chevy Chase
Colfax City
Coolidge Park
Corsons Blk 4 Rep
Corsons Sub
Deeb Add
El Dorado Hills
El Dorado Hills Annex
El Dorado Hills Rep
Emerys 1 Sub
Emerys No 1 Sub
Flagg Morris Sub
Floral Villa Estates
Floral Villa Estates Rep
Floral Villa Park Blk 11 Pt Re
Halls Central Ave 1
Halls Central Ave 2
Hanousek F E M M
Hanousek Subdivision
Harshaw Lake 2
Harshaw Lake Replat
Harshaw Sub
Herkimer Heights
Herron Heights
Hialea
Highview Sub
Home Site
Hudson City Sub Rev Rep
Inter Bay
Kellhurst Rep
Kenilworth
Kenwood Sub
Kenwood Sub Add
Lake Louise
Lake Sheffield 1st Sec
Leslee Heights Sub Sec 2
Lewis Burkhard
Lynnmoor
Macks Sub
Mcleods Add
Melrose Sub
Monterey Sub
Mount Vernon
Mount Washington 2nd Sec
Norton Sub
Oak Ridge
Pelham Manor 1
Pine City Sub Rep
Ponce De Leon Park
Powers Central Park Sub
Remsen Heights
Ridge Crest
Royal Palm Park
Russell Park
School Park Add
Sirmons Estates
St Petersburg Investment Co Su
Stuart Geo Sub
Sunshine Park
Thirtieth Ave Sub
Thuma
Wayne Heights Rep
Whites Rep
Woodhurst Ext
Woodlawn Heights
- One Click Broker
- 800.557.8193
- Toll Free: 800.557.8193
- billing@brokeridxsites.com






































