4388 50th Place S, ST PETERSBURG, FL 33711
Active
Property Photos
Would you like to sell your home before you purchase this one?
Priced at Only: $625,000
For more Information Call:
Address: 4388 50th Place S, ST PETERSBURG, FL 33711
Property Location and Similar Properties
- MLS#: TB8460715 ( Residential )
- Street Address: 4388 50th Place S
- Viewed: 6
- Price: $625,000
- Price sqft: $294
- Waterfront: No
- Year Built: 1956
- Bldg sqft: 2124
- Bedrooms: 2
- Total Baths: 2
- Full Baths: 2
- Garage / Parking Spaces: 2
- Days On Market: 17
- Additional Information
- Geolocation: 27.7216 / -82.6912
- County: PINELLAS
- City: ST PETERSBURG
- Zipcode: 33711
- Subdivision: Maximo Moorings
- Elementary School: Gulfport Elementary PN
- Middle School: Bay Point Middle PN
- High School: Lakewood High PN
- Provided by: KELLER WILLIAMS TAMPA PROP.
- Contact: Angie Blackman
- 813-264-7754

- DMCA Notice
-
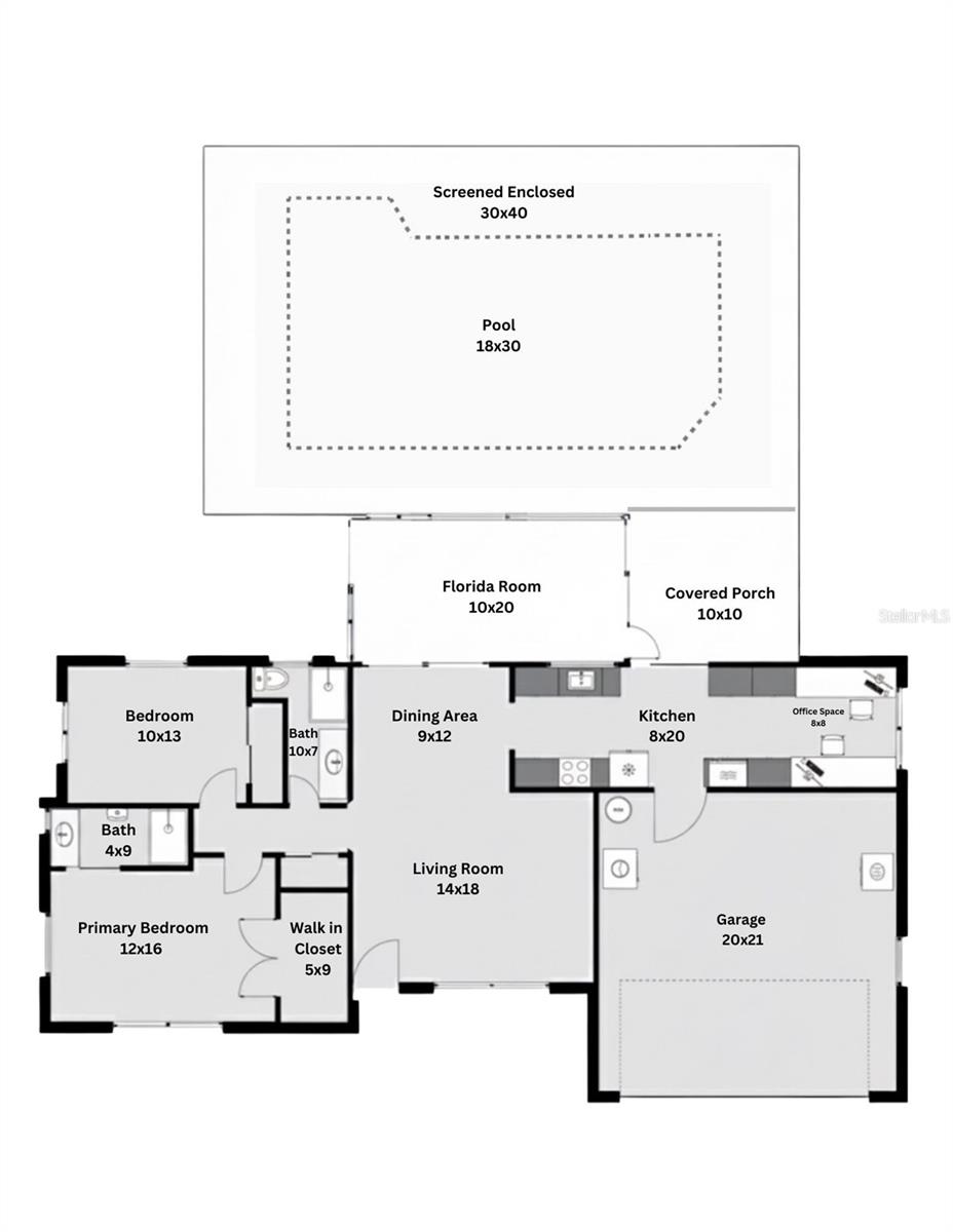
DescriptionOne or more photo(s) has been virtually staged. Move In Ready | POOL Home | RV Hookup | Major 2025 Renovations! Tucked away on a quiet cul de sac, this beautifully updated pool home invites you to relax into the Florida lifestyle. Live here, where sunny afternoons are spent floating in your private screened pool and evenings unwind with a book in the breezy Florida room. Take a close look at this rare find where virtually all major renovations have already been completed, most within the past 12 months! Located in the desirable Maximo Moorings neighborhood, this beautiful 2 bedroom, 2 bath, 2 car garage home with thoughtful upgrades throughout. This is a home designed for easy living, outdoor enjoyment, and peace of mind, just minutes from vibrant downtown St. Pete or the beautiful Gulf beaches. Home experienced Hurricane Helene flooding in 2024, which was professionally remediated, and all 2025 renovations were completed by licensed contractors, updated to code with City of St. Petersburg permits applied and closed. Buyers will appreciate the peace of mind that comes with a long list of big ticket upgrades and system replacements. Mid century charm meets modern comfort with a 2025 remodeled kitchen featuring custom cabinetry, marble countertops, a farm style sink with garbage disposal, energy efficient stainless steel appliances, and two built in desks, perfect for work from home or study space. Updated Bathrooms in 2025 with guest bath designer tile, new vanities, premium fixtures, and water efficient toilets. Refurbished terrazzo flooring flows throughout the home, offering durability, easy maintenance, and timeless style. Major system upgrades completed in 2025 also include a metal roof with new gutters, soffit, and fascia, HVAC system with new attic ducting and insulation, water heater, and upgraded PEX plumbing. Additional improvements include impact rated exterior doors, impact rated garage door with upgraded opener. Appreciate the energy efficient double pane windows, and 2020 impact rated sliding glass doors. Outdoor living truly shines with a large screened and enclosed 30,000 gallon lap pool, resurfaced in 2020, and a new pool pump installed in 2025. The Florida room, enclosed with acrylic sliding windows, provides flexible indoor/outdoor living and includes a dedicated outlet for a future mini split system. The backyard offers peace & privacy, while the reclaimed water irrigation system supports lush landscaping at a lower cost. A transferable flood insurance policy is available at approximately $2,827/year, adding value and predictability. With thoughtful upgrades throughout and RV or generator hook up, its a home designed for easy living, outdoor enjoyment, and peace of mind. More features & benefits include durable and easy maintenance Terrazzo flooring throughout, 2025 washer and dryer, Craftsman installed upgraded hardwood trim with crown molding throughout, and simple yet practical voluntary HOA. Conveniently located near I 275, the Pinellas Trail, marinas, boat ramps, Downtown St. Pete, and the Gulf beaches, this home also offers versatility and proximity to 3 International Airports within 25 miles. You have found the perfect balance of location, upgrades, efficiency, and Florida lifestyle. Schedule your private showing today and start living your best Florida life!
Payment Calculator
- Principal & Interest -
- Property Tax $
- Home Insurance $
- HOA Fees $
- Monthly -
Features
Building and Construction
- Covered Spaces: 0.00
- Exterior Features: Private Yard, RV Hookup, Sliding Doors
- Fencing: Vinyl
- Flooring: Terrazzo
- Living Area: 1176.00
- Roof: Metal
Land Information
- Lot Features: Cleared, Cul-De-Sac, Flood Insurance Required
School Information
- High School: Lakewood High-PN
- Middle School: Bay Point Middle-PN
- School Elementary: Gulfport Elementary-PN
Garage and Parking
- Garage Spaces: 2.00
- Open Parking Spaces: 0.00
- Parking Features: Curb Parking, Driveway, Garage Door Opener
Eco-Communities
- Pool Features: Gunite, In Ground, Screen Enclosure
- Water Source: Public
Utilities
- Carport Spaces: 0.00
- Cooling: Central Air
- Heating: Electric
- Pets Allowed: Yes
- Sewer: Public Sewer
- Utilities: Cable Connected, Electricity Connected, Water Connected
Finance and Tax Information
- Home Owners Association Fee: 0.00
- Insurance Expense: 0.00
- Net Operating Income: 0.00
- Other Expense: 0.00
- Tax Year: 2024
Other Features
- Appliances: Dishwasher, Disposal, Dryer, Electric Water Heater, Exhaust Fan, Microwave, Range, Refrigerator, Washer
- Association Name: KIM GAUTHIER
- Country: US
- Furnished: Unfurnished
- Interior Features: Ceiling Fans(s), Crown Molding, Living Room/Dining Room Combo, Solid Wood Cabinets, Stone Counters, Window Treatments
- Legal Description: MAXIMO MOORINGS UNIT 4 BLK 14, LOT 5
- Levels: One
- Area Major: 33711 - St Pete/Gulfport
- Occupant Type: Owner
- Parcel Number: 03-32-16-56232-014-0050
- View: Pool
Similar Properties
Nearby Subdivisions
Back Bay Manor 3
Bayview
Bethwood Terrace
Boca Ceiga Heights
Bouwman Sub Rep
Broadwater
Brookdale
Brunsondowell Sub 1
Brunsondowell Sub No. 1
Childs Park
College Landings Rep
Dearmins Sub 4
Disston Terrace
Disstonia
Dolphin Cayphase 1
Estelle Manor
Fairmount Park
Forest Heights Rev
Halls Central Ave 3
Leverichs J J Add To Tourist P
Leverichs J J Tourist Park
Matthews Yates Rep
Maximo Moorings
Maximo Moorings Clubhouse Add
Mcclays J O Sub
Meadowville
Midwayhomesite
Packards Sub
Palmway
Paradise Pointe
Perrys Skyview 1st Add
Perrys Skyview Sub
Richardsons W E
Ridgeway
Ridgeway 2
Ridgewood Terrace
Salehs W B Resub
Schultz Rep Gus C
Shadow Lawn
South Portland Heights Rep
South Shadow Lawn
Spring Gardens Sub
St Petersburg Investment Cos A
Victory Heights
Vinsetta Park Add Rev
West Central Ave
West Central Ave Sub
West Shadow Lawn
West Shore Village
West Shore Village Six
- One Click Broker
- 800.557.8193
- Toll Free: 800.557.8193
- billing@brokeridxsites.com
















































