6332 River House Drive, Panama City Beach, FL 32413
Active
Property Photos
Would you like to sell your home before you purchase this one?
Priced at Only: $1,195,000
For more Information Call:
Address: 6332 River House Drive, Panama City Beach, FL 32413
Property Location and Similar Properties
- MLS#: 775390 ( Residential )
- Street Address: 6332 River House Drive
- Viewed: 99
- Price: $1,195,000
- Price sqft: $457
- Waterfront: Yes
- Wateraccess: Yes
- Waterfront Type: BoatDockSlip
- Year Built: 2025
- Bldg sqft: 2616
- Bedrooms: 4
- Total Baths: 3
- Full Baths: 3
- Garage / Parking Spaces: 2
- Days On Market: 288
- Additional Information
- Geolocation: 30.2932 / -85.815
- County: BAY
- City: Panama City Beach
- Zipcode: 32413
- Subdivision: Rivercamps On Crooked Creek
- Elementary School: West Bay
- Middle School: Surfside
- High School: Arnold
- Provided by: Berkshire Hathaway HomeServices Beach Properties o
- DMCA Notice
-
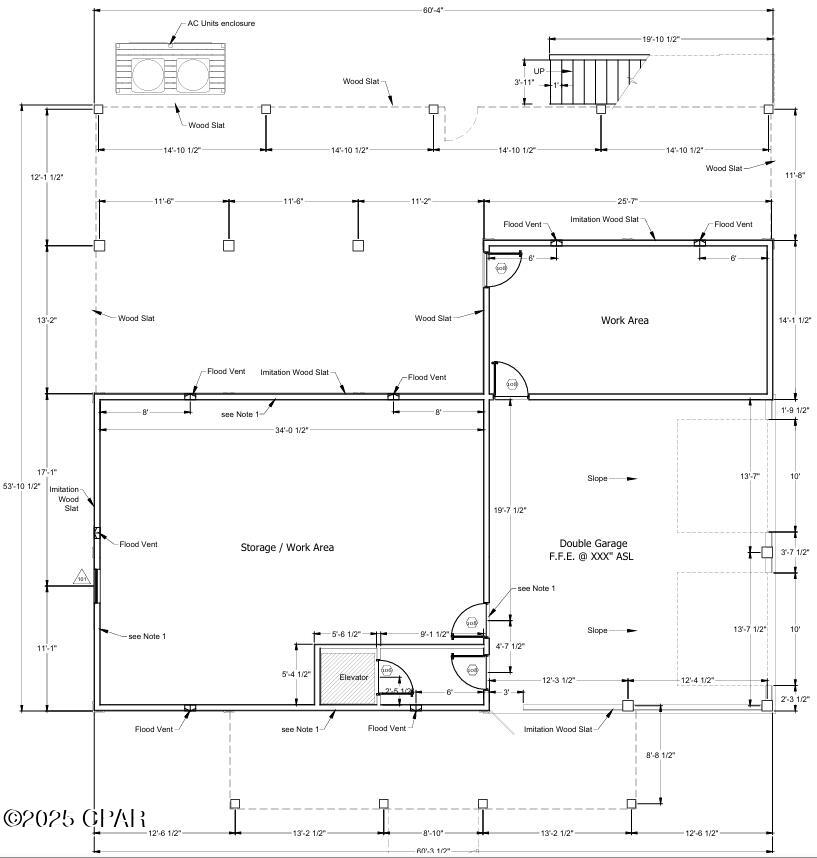
DescriptionLot is cleared and plans are approved on this 4 bedroom (or 3 bedroom with an office) 3 full bath home that will include an elevator. Stillwater Homes Coastal Construction will be building this beautiful home in the gated, waterfront community of RiverCamps on Crooked Creek. Buyer may be able to make personal selections dependent on stage of construction and builders' allowances. Notable features of this home will be the side by side Thermador fridge/freezer, Thermador gas top stove with electric oven. A walk in pantry. Quartz countertops. The open floor plan will be highlighted by the soaring 10'x10' cupola. A screened in porch that will run the length of the back of the home (60 feet long and 647 sq ft!). An elevator from the ground floor to the main floor's foyer for ease of access. 10 ft ceilings throughout. Builder even has a model home available to be viewed to showcase finished plan. Beneath the home you will have a 2 car garage with 738 sq ft plus two large storage areas, one is 986 sq ft and the other is 371 sq ft, that would make an amazing shop and/or storage for all of your toys. Home will be situated on a .8 acre lot and backs to the salt marshes with a creek view. The newly completed pool and pavilion is less than 1/2 mile away. RiverCamps is a gated, outdoor enthusiasts dream. 1500 acres with 1000 acres committed to conservation and the remaining 500 acres will have less than 450 homesites. This golf cart friendly community has over 7 miles of connected trails and boardwalks, is bordered by Crooked Creek, West Bay and the Intracoastal Waterway. Owners enjoy onsite dry boat storage, a community boat ramp that has direct access to West Bay and the Gulf with a short 30 minute boat ride. Day use boat slips, a 600 ft pier, campsite on the creek with adult tent and kid tent and a bath house. There is also a basketball court and 2 pickleball courts. RiverCamps is conveniently located 10 minutes from the NW Florida Beaches International Airport, 10 miles from Pier Park and the famous white sandy beaches, 5 miles to the new hospital/medical plaza and 2 miles from the recently announced 500,000 sq ft retail development that will include Publix Grocery.
Payment Calculator
- Principal & Interest -
- Property Tax $
- Home Insurance $
- HOA Fees $
- Monthly -
Features
Building and Construction
- Covered Spaces: 0.00
- Exterior Features: BoatSlip, BoatRamp, CoveredPatio, Dock, Patio, Porch
- Flooring: LuxuryVinylPlank
- Living Area: 0.00
Land Information
- Lot Features: Paved
School Information
- High School: Arnold
- Middle School: Surfside
- School Elementary: West Bay
Garage and Parking
- Garage Spaces: 2.00
- Open Parking Spaces: 0.00
- Parking Features: Garage, GarageDoorOpener
Eco-Communities
- Pool Features: Community
Utilities
- Carport Spaces: 0.00
- Cooling: CentralAir, CeilingFans
- Heating: Central, Fireplaces
- Sewer: PublicSewer
- Utilities: UndergroundUtilities
Amenities
- Association Amenities: Dock, Gated, Gazebo, Barbecue, BoatSlip
Finance and Tax Information
- Home Owners Association Fee: 0.00
- Insurance Expense: 0.00
- Net Operating Income: 0.00
- Other Expense: 0.00
- Pet Deposit: 0.00
- Security Deposit: 0.00
- Tax Year: 2024
- Trash Expense: 0.00
Other Features
- Accessibility Features: AccessibleElevatorInstalled
- Appliances: ElectricRange, TanklessWaterHeater
- Legal Description: RIVERCAMPS ON CROOKED CREEK PH 2 LOT 112 ORB 4509 P 991
- Area Major: 04 - Bay County - North
- Parcel Number: 32611-622-000
- Style: Craftsman
- The Range: 0.00
- Views: 99
Similar Properties
Nearby Subdivisions
[no Recorded Subdiv]
Bare Footin Condominium
Bayside At Ward Creek
Beachside East
Beachwalk Condo
Bid A Wee
Bid-a-wee
Bid-a-wee Beach
Bid-a-wee Beach 1st Add
Breakwater At Ward Creek
Carillon Beach
Carillon Beach Phase I
Coral Bay Village
Crestview Heights
El Centro Beach
Gulf Highlands
Gulf Highlands Unit-1
Gulf Highlands Unit-2
Gulf Vista
Gulf Vista Sec 2
Hollywood Beach
Horizon South Townhouses
Inlet Beach Heights
Jamaican Lake
Kelly Street Pines
Kiska Beach
Kiska Beach 1st Add
La Valencia Beach Resort
Laguna Beach
Laguna Beach 2nd Add
Laguna Beach 2nd Addition
Laguna Beach 6th Add
Laguna Beach 7th Add
Laguna Beach 8th Add
Laguna Beach Estates
Laguna Beach Estates 5th Add
Laguna Beach Estates 7th Add
Laguna Beach Estates 9th Add
Laguna Beach Plaza
Laguna Haven
Lakes At Summer Breeze
Lakeside By The Gulf
Latitude At Watersound
Lullwater Beach
Margaritaville Cottages
Miramar Beach
Miramar Heights
No Named Subdivision
Open Sands
Palmetto Bluff
Palmetto Trace
Palmetto Trace Phase 2
Palmetto Trace Phase Iii
Palmetto Trace Phase Iv
Paradise Grove
Pier Park
Pirate's Cove Inlet
Pointe Panama
Reviera Beach Villas
Rivercamps On Crooked Creek
Riviera Beach
Riviera Beach 1st Add
Royal Palms Of Laguna Beach
Salt Grass At Ward Creek
Santa Monica Beach
Seaclusion Beach
Seagull Beach
Seminole Ridge
Shores
Shores Townhouses
Southern Exposures Ii
Southfield Sec 1
Southwinds Estates
Summer Breeze
Summer Breeze Phase Ii
Summer Towne Cottage Condo Ph
Summerwood Phase I
Summerwood Phase Ii
Sunnyside
Suntime Beach U-1
The Palms
The Preserve At Lake Powell
Turtle Cove At Lake Powell
Villa Chateaus
Wells Gulf Beach Estates
Wendwood Condo
Westlake Estates Phase I
Westwood Beach Estates
Whisper Dunes
Wild Heron Phase I
Wild Heron Phase Ii
Wild Heron Phase V
Wild Heron Phase Vi
Wild Heron Phase Xiv
- One Click Broker
- 800.557.8193
- Toll Free: 800.557.8193
- billing@brokeridxsites.com


