2367 Sherman Avenue, Panama City, FL 32405
Active
Property Photos
Would you like to sell your home before you purchase this one?
Priced at Only: $230,000
For more Information Call:
Address: 2367 Sherman Avenue, Panama City, FL 32405
Property Location and Similar Properties
- MLS#: 770270 ( Land )
- Street Address: 2367 Sherman Avenue
- Viewed: 67
- Price: $230,000
- Price sqft: $0
- Waterfront: No
- Year Built: Not Available
- Bldg sqft: 0
- Days On Market: 367
- Additional Information
- Geolocation: 30.1915 / -85.6262
- County: BAY
- City: Panama City
- Zipcode: 32405
- Subdivision: [no Recorded Subdiv]
- Provided by: Think Real Estate
- DMCA Notice
-
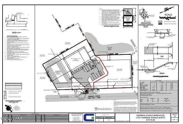
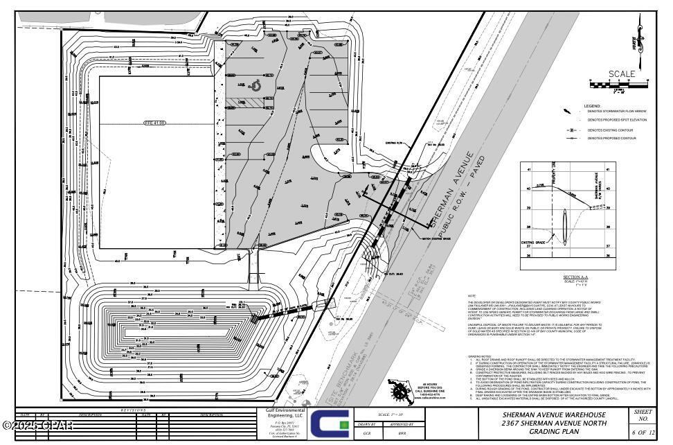
DescriptionDevelopment Opportunity in Panama City FL. High and Dry commercial land that is development ready with 285+/ ft of frontage on Sherman Ave. No flood zone or wetlands. Partially cleared. Construction and Engineering plan already in place with development order currently under review for a 5,400 SF warehouse/office with office and parking . Commercially zoned property is suitable for multiple commercial uses and may be used for other purposes than the plan described here. Zoned C3 A Commercial. Construction Plan available Upon Request. This includes: Site plan, Grading plan, Utility plan, Stormwater Management plan, Erosion Control, Landscape plan, Construction details and more. Engineering and construction plan is optional but may convey to buyer with offer. Development Plan is currently under review with Bay County. No construction has been started. All information here is believed to be reliable. Buyer should verify all important figures including measurements, property lines, and usage.
Payment Calculator
- Principal & Interest -
- Property Tax $
- Home Insurance $
- HOA Fees $
- Monthly -
Features
Building and Construction
- Covered Spaces: 0.00
- Living Area: 0.00
Garage and Parking
- Garage Spaces: 0.00
- Open Parking Spaces: 0.00
Utilities
- Carport Spaces: 0.00
Finance and Tax Information
- Home Owners Association Fee: 0.00
- Insurance Expense: 0.00
- Net Operating Income: 0.00
- Other Expense: 0.00
- Pet Deposit: 0.00
- Security Deposit: 0.00
- Trash Expense: 0.00
Other Features
- Legal Description: HIGHLAND CITY COMM AT SE COR LOT 11 BLK 32 TH E 1052.81', N 107.33', S87E 454.31' FOR POB TH S87E 70.59' N28E 137.56', S61E 127.32' TO W ROW LI OF SHERMAN AVE TH SW ALG W ROW LI OF SHERMAN AVE 285.77', TH W 112.65', THENCE W 193.66' TO POB ORB 4681 P 81
- Area Major: 02 - Bay County - Central
- Parcel Number: 12696-000-010
- The Range: 0.00
- Views: 67
Similar Properties
- One Click Broker
- 800.557.8193
- Toll Free: 800.557.8193
- billing@brokeridxsites.com


