1924 Danford Avenue, Panama City, FL 32405
Property Photos
Would you like to sell your home before you purchase this one?
Priced at Only: $279,900
For more Information Call:
Address: 1924 Danford Avenue, Panama City, FL 32405
Property Location and Similar Properties
- MLS#: 767581 ( Residential )
- Street Address: 1924 Danford Avenue
- Viewed: 73
- Price: $279,900
- Price sqft: $197
- Waterfront: No
- Year Built: 2018
- Bldg sqft: 1424
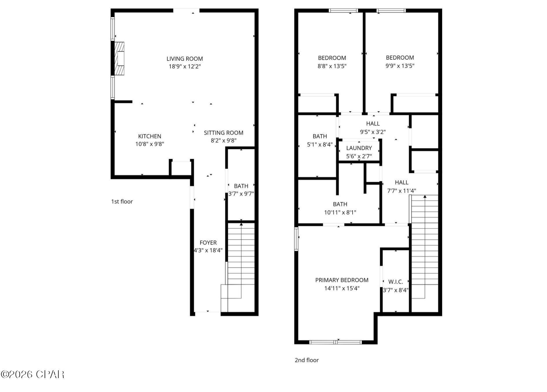
- Bedrooms: 3
- Total Baths: 3
- Full Baths: 3
- Days On Market: 321
- Additional Information
- Geolocation: 30.1839 / -85.7164
- County: BAY
- City: Panama City
- Zipcode: 32405
- Subdivision: Drummond & Ware Add
- Elementary School: Lucille Moore
- Middle School: Jinks
- High School: Bay
- Provided by: Counts Real Estate Group
- DMCA Notice
-
DescriptionWelcome to this beautiful contemporary 3 bedroom, 3 bath home nestled in the desirable St. Andrews area, conveniently close to FSU and Gulf Coast State College. Featuring a spacious interior with an open floor plan, this home offers a seamless flow from the living area to the open plan kitchen, perfect for modern living. Each bedroom in this home is generously proportioned, boasting its own ensuite bathroom and walk in closet, providing privacy and comfort for every member of the household. The residence not only impresses with its functionality but also with its well maintained condition, ensuring a move in ready experience for the new owners. Buyers are encouraged to verify all measurements and information crucial to their decision making process. Whether you're seeking your first home or a savvy investment opportunity, this property offers versatility and quality in one package. Don't miss out contact the listing agent today to schedule a showing of this exceptional home. *Interior photos may not be of exact home.*
Payment Calculator
- Principal & Interest -
- Property Tax $
- Home Insurance $
- HOA Fees $
- Monthly -
Features
Building and Construction
- Covered Spaces: 0.00
- Flooring: LuxuryVinylPlank
- Living Area: 0.00
Land Information
- Lot Features: Paved
School Information
- High School: Bay
- Middle School: Jinks
- School Elementary: Lucille Moore
Garage and Parking
- Garage Spaces: 0.00
- Open Parking Spaces: 0.00
- Parking Features: AdditionalParking
Utilities
- Carport Spaces: 0.00
- Cooling: CentralAir, CeilingFans
- Heating: Central, Electric
- Road Frontage Type: CityStreet
- Sewer: PublicSewer
- Utilities: ElectricityAvailable
Finance and Tax Information
- Home Owners Association Fee: 0.00
- Insurance Expense: 0.00
- Net Operating Income: 0.00
- Other Expense: 0.00
- Pet Deposit: 0.00
- Security Deposit: 0.00
- Trash Expense: 0.00
Other Features
- Appliances: ElectricOven, ElectricRange, ElectricWaterHeater
- Legal Description: DRUMMOND & WARE ADD N 46' OF LOT 17 BLK 25 ORB 4079 P 1246
- Area Major: 02 - Bay County - Central
- Occupant Type: Vacant
- Parcel Number: 28021-000-011
- Style: Traditional
- The Range: 0.00
- Views: 73
Similar Properties
Nearby Subdivisions
[no Recorded Subdiv]
Ashland
Baldwin Rowe
Bayview
Bayview Add
Bayview Heights
Camryn's Crossing
Chandlee 3rd Add
Chandlee 3rd Add To Pc
Coastal Lands 2nd Add
College Village Unit 1
Delwood Estates Ph 1
Douglas Road Sub
Drummond & Ware Add
Edgewood
Floridian Place
Forest Park
Forest Park 1st Add
Forest Park 3rd Add
Forest Park 5th Add
Forest Park East
Forest Park East U-2
Forest Park Estates
Hawks Landing
Hentz 1st Add Unit B
Highland City
Hiland Heights
Hl Sudduth 1st Add
Horizon Pointe
Huntingdon Estates U-3
Island View Estates
Kings Point
Kings Point 1st Add
Kings Point 2nd Add
Kings Point 5th Add
Kings Point Harbour U-i Replat
Kings Ranch
Lake Marin
Morris Heights
No Named Subdivision
Northgate
Northshore Islands
Northshore Phase Vii
Oakland Terrace Add
Osprey Cove
Oxford Place
Oxford Place Unit 2
Panama City
Pine Tree Place Unit 1
Plantation Park
Premier Estates Ph 1
Premier Estates Ph 2
Premier Estates Ph 3
Pretty Bayou 2nd
Pretty Bayou Hts 1st
Pretty Bayou Hts 2nd
Pretty Bayou Replat
Sherwood Forest
Sherwood Unit 2
Sherwood Unit 5
St. Andrews Bay Dev. Co.
Sweetbay
Ten Acre Terrace
The Woods Phase 2
The Woods Phase 3
Venetian Villa
Venetian Villa 1st Add Replat
Venetian Villa 2nd Add Replat
Venetian Villa 3rd Add
Woodland Estates
Woodridge
- One Click Broker
- 800.557.8193
- Toll Free: 800.557.8193
- billing@brokeridxsites.com


