458 Whistling Duck Place, RUSKIN, FL 33570
Active
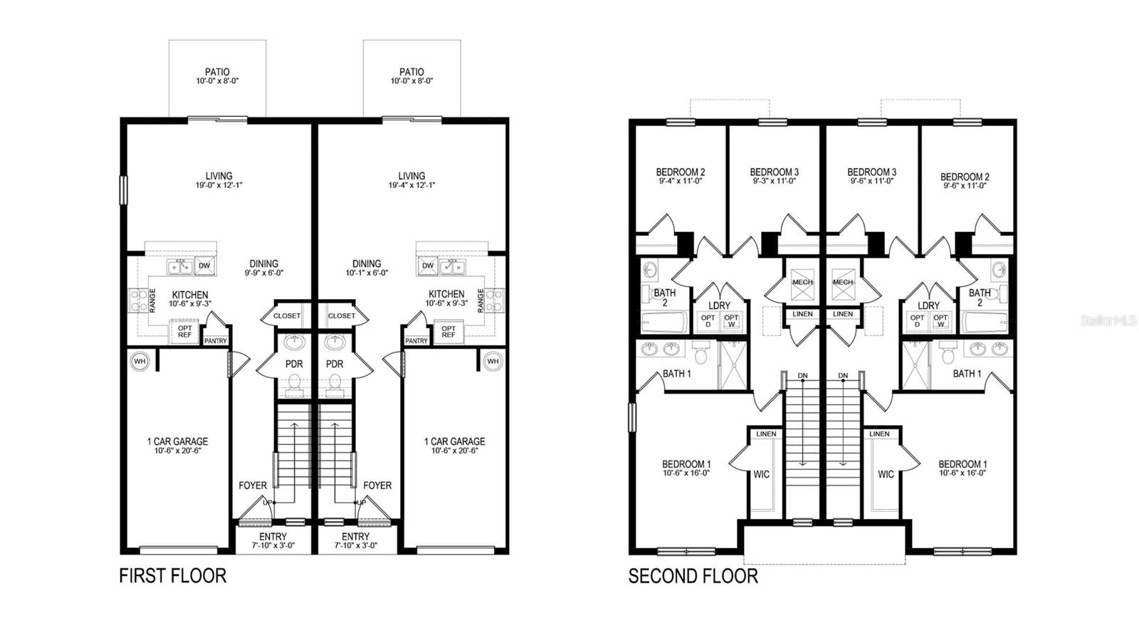
Property Photos
Would you like to sell your home before you purchase this one?
Priced at Only: $279,990
For more Information Call:
Address: 458 Whistling Duck Place, RUSKIN, FL 33570
Property Location and Similar Properties
- MLS#: TB8466817 ( Residential )
- Street Address: 458 Whistling Duck Place
- Viewed: 1
- Price: $279,990
- Price sqft: $162
- Waterfront: No
- Year Built: 2026
- Bldg sqft: 1724
- Bedrooms: 3
- Total Baths: 3
- Full Baths: 2
- 1/2 Baths: 1
- Garage / Parking Spaces: 1
- Days On Market: 2
- Additional Information
- Geolocation: 27.715 / -82.419
- County: HILLSBOROUGH
- City: RUSKIN
- Zipcode: 33570
- Subdivision: Ruskin Reserve
- Elementary School: Thompson
- Middle School: Shields
- High School: Lennard
- Provided by: D R HORTON REALTY OF TAMPA LLC
- Contact: Jodi Smenda
- 813-736-3541

- DMCA Notice
-
DescriptionUnder Construction. The builder is offering buyers up to $25,000 towards closing costs with the use of a preferred lender and title company. Ruskin Reserve is NO CDD community that offers a mix of single family homes and townhomes designed for modern living. Conveniently located near US 41 and I 75, the community provides easy access to Tampa, Apollo Beach, and Sun City Center. Enjoy nearby outdoor attractions like EG Simmons Regional Park and Little Manatee River State Park, along with a variety of shopping, dining, and entertainment options. Homes in Ruskin Reserve feature D.R. Hortons signature Smart Home System, durable concrete block construction, and energy efficient designs, making this community ideal for families and professionals alike. Pictures, photographs, colors, features, and sizes are for illustration purposes only and will vary from the homes as built. Home and community information, including pricing, included features, terms, availability, and amenities, are subject to change and prior sale at any time without notice or obligation. Materials may vary based on availability. D.R. Horton Reserves all Rights.
Payment Calculator
- Principal & Interest -
- Property Tax $
- Home Insurance $
- HOA Fees $
- Monthly -
Features
Building and Construction
- Builder Model: Pearson b
- Builder Name: D.R. Horton
- Covered Spaces: 0.00
- Flooring: Carpet, Ceramic Tile
- Living Area: 1463.00
- Roof: Shingle
Property Information
- Property Condition: Under Construction
School Information
- High School: Lennard-HB
- Middle School: Shields-HB
- School Elementary: Thompson Elementary
Garage and Parking
- Garage Spaces: 1.00
- Open Parking Spaces: 0.00
- Parking Features: Parking Pad
Eco-Communities
- Water Source: Public
Utilities
- Carport Spaces: 0.00
- Cooling: Central Air
- Heating: Central, Heat Pump
- Pets Allowed: Yes
- Sewer: Public Sewer
- Utilities: Public, Underground Utilities
Finance and Tax Information
- Home Owners Association Fee Includes: Other
- Home Owners Association Fee: 127.00
- Insurance Expense: 0.00
- Net Operating Income: 0.00
- Other Expense: 0.00
- Tax Year: 2025
Other Features
- Appliances: Dishwasher, Dryer, Microwave, Range, Refrigerator, Washer
- Association Name: Breeze Home
- Country: US
- Furnished: Unfurnished
- Interior Features: Open Floorplan
- Legal Description: RUSKIN RESERVE SOUTH LOT 89
- Levels: Two
- Area Major: 33570 - Ruskin/Apollo Beach
- Occupant Type: Vacant
- Parcel Number: U 08 32 19 D79 000000 00089.0
- Zoning Code: PD/PD
Similar Properties
- One Click Broker
- 800.557.8193
- Toll Free: 800.557.8193
- billing@brokeridxsites.com

































