577 Davis Boulevard, TAMPA, FL 33606
Active
Property Photos
Would you like to sell your home before you purchase this one?
Priced at Only: $5,950,000
For more Information Call:
Address: 577 Davis Boulevard, TAMPA, FL 33606
Property Location and Similar Properties
- MLS#: TB8461858 ( Residential )
- Street Address: 577 Davis Boulevard
- Viewed: 93
- Price: $5,950,000
- Price sqft: $493
- Waterfront: No
- Year Built: 2026
- Bldg sqft: 12079
- Bedrooms: 5
- Total Baths: 7
- Full Baths: 5
- 1/2 Baths: 2
- Garage / Parking Spaces: 8
- Days On Market: 67
- Additional Information
- Geolocation: 27.9097 / -82.4601
- County: HILLSBOROUGH
- City: TAMPA
- Zipcode: 33606
- Subdivision: Davis Islands Rep Of Pt O
- Elementary School: Gorrie
- Middle School: Wilson
- High School: Plant
- Provided by: SMITH & ASSOCIATES REAL ESTATE
- Contact: B G Holmberg, PA
- 813-839-3800

- DMCA Notice
-
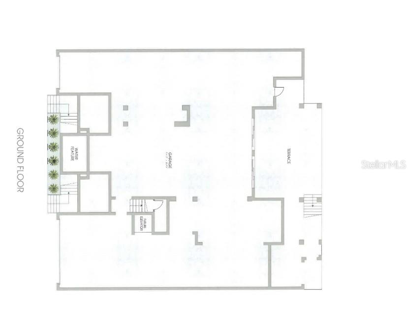
DescriptionUnder Construction. New construction by local Luxury home builder Brookshire Homes on a large lot on Davis Islands. A Coastal contemporary 3 level luxury home with 5 bedrooms, 5 full and 2 half baths, Den, Bonus room, Pool & Spa, outdoor kitchen AND an 8 car garage! Exceptional craftsmanship and custom detail throughout. With block construction and impact windows & Gyp Crete concrete insulation on second floor, this elevated home offers strength, stability, and peace of mind. From the soaring 24 foot foyer to the 12 foot ceilings on first living level & 10 foot on the second, discover wide plank wood flooring, marble countertops, custom built in cabinetry, and a generator, just to name a few features... The open floor plan first level features a large great room with a gas fireplace, opening up to a large covered lanai with separate outdoor kitchen area, separate dining room with elaborate wine display, large chefs kitchen with top of the line Thermador appliances, a plumbed coffee station, beverage refrigerator, and a walk in pantry/scullery with a second dishwasher. On this level you will also find a separate office, a bedroom suite + a large bonus/game room. Upstairs, the primary large suite offers panoramic water views and a spa inspired bathroom with a large shower as well as a freestanding tub. An elegant walk in closet with built in cabinetry & island completes the suite. Three additional in suite bedrooms with walk in closets, a loft with wet bar and purified water station, and a great laundry room with cabinetry for storage. Welcome to Davis Island's vibrant village feel and easy move around by golf cart, as well the immediate access to Downtown Tampa & Water Street, or enjoy dog park, dog beach, water access or tennis courts and pickleball?
Payment Calculator
- Principal & Interest -
- Property Tax $
- Home Insurance $
- HOA Fees $
- Monthly -
Features
Building and Construction
- Builder Model: 6537
- Builder Name: Brookshire Homes, LLC.
- Covered Spaces: 0.00
- Exterior Features: Balcony, French Doors, Outdoor Kitchen, Private Mailbox, Rain Gutters, Sliding Doors
- Fencing: Vinyl
- Flooring: Hardwood, Tile, Wood
- Living Area: 6537.00
- Roof: Metal
Property Information
- Property Condition: Under Construction
Land Information
- Lot Features: Flood Insurance Required, FloodZone, City Limits, Landscaped, Level, Near Marina, Oversized Lot, Paved
School Information
- High School: Plant-HB
- Middle School: Wilson-HB
- School Elementary: Gorrie-HB
Garage and Parking
- Garage Spaces: 8.00
- Open Parking Spaces: 0.00
- Parking Features: Circular Driveway, Driveway, Electric Vehicle Charging Station(s), Garage Door Opener, Golf Cart Garage, Golf Cart Parking, Ground Level, Oversized, Garage, Tandem, Basement
Eco-Communities
- Pool Features: Gunite, Heated, In Ground, Lighting, Outside Bath Access, Salt Water, Tile
- Water Source: Public
Utilities
- Carport Spaces: 0.00
- Cooling: Central Air, Zoned
- Heating: Central, Zoned
- Pets Allowed: Yes
- Sewer: Public Sewer
- Utilities: Electricity Connected, Natural Gas Connected, Sewer Connected, Underground Utilities, Water Connected
Finance and Tax Information
- Home Owners Association Fee: 0.00
- Insurance Expense: 0.00
- Net Operating Income: 0.00
- Other Expense: 0.00
- Tax Year: 2024
Other Features
- Appliances: Bar Fridge, Dishwasher, Disposal, Exhaust Fan, Gas Water Heater, Microwave, Range, Range Hood, Refrigerator, Tankless Water Heater, Wine Refrigerator
- Country: US
- Furnished: Unfurnished
- Interior Features: Crown Molding, Eat-in Kitchen, High Ceilings, Kitchen/Family Room Combo, Open Floorplan, PrimaryBedroom Upstairs, Smart Home, Solid Surface Counters, Solid Wood Cabinets, Tray Ceiling(s), Walk-In Closet(s)
- Legal Description: DAVIS ISLANDS REPLAT OF PART OF BLKS 50 THRU 57 LOT 4 BLOCK B
- Levels: Three Or More
- Area Major: 33606 - Tampa / Davis Island/University of Tampa
- Occupant Type: Vacant
- Parcel Number: A-36-29-18-4J6-B00000-00004.0
- Possession: Close Of Escrow
- Style: Contemporary, Custom, Elevated, Other
- View: Pool, Water
- Views: 93
- Zoning Code: RS-75
Nearby Subdivisions
Benjamins 5th Add
Benjamins Add To West Ta
Byars Thompson Add Davis
Byars Thompson Addition Davis
Corronella
Davis Islands
Davis Islands Pb10 Pg52 To 57
Davis Islands Rep Of Pt O
Hamners Sub
Hyde Park Condominium
Hyde Park West
Lingerlong
Morrison Grove Sub
Riverside
W J Chambers Resub Of
Watrous Rev Map
Wecklers Julia Sub
West Land
Wynne Realty Cos Rev Map
- One Click Broker
- 800.557.8193
- Toll Free: 800.557.8193
- billing@brokeridxsites.com












