861 28th Avenue N, ST PETERSBURG, FL 33704
Property Photos
Would you like to sell your home before you purchase this one?
Priced at Only: $675,000
For more Information Call:
Address: 861 28th Avenue N, ST PETERSBURG, FL 33704
Property Location and Similar Properties
- MLS#: TB8418832 ( Residential Income )
- Street Address: 861 28th Avenue N
- Viewed: 10
- Price: $675,000
- Price sqft: $0
- Waterfront: No
- Year Built: 1927
- Bldg sqft: 0
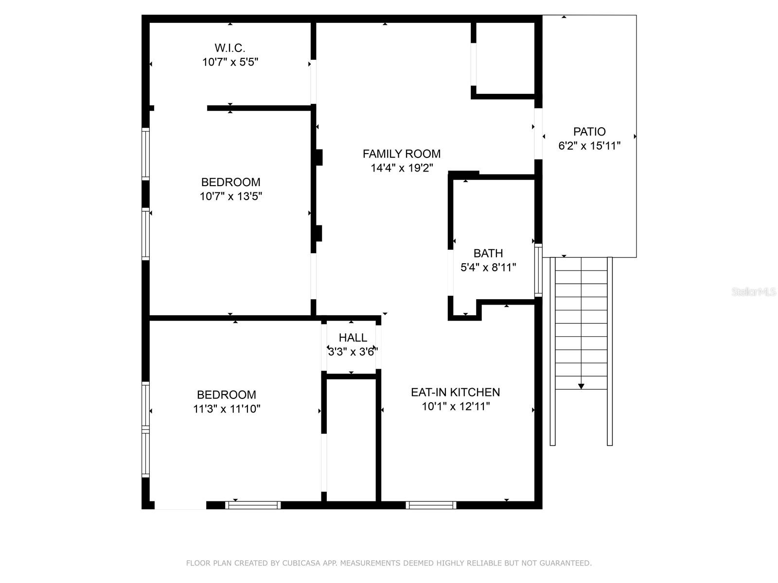
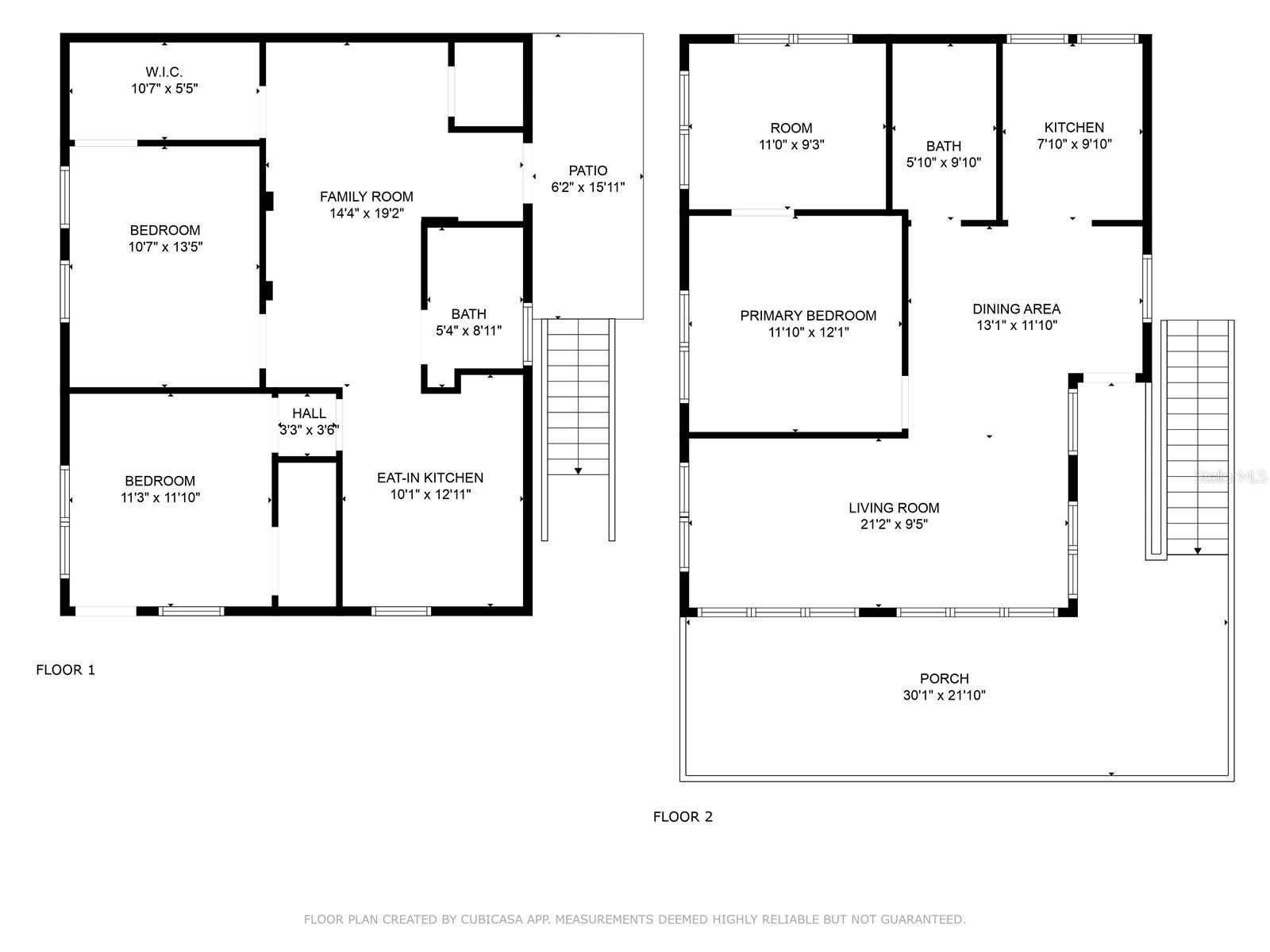
- Bedrooms: 3
- Total Baths: 2
- Days On Market: 110
- Additional Information
- Geolocation: 27.7978 / -82.646
- County: PINELLAS
- City: ST PETERSBURG
- Zipcode: 33704
- Subdivision: Florida Heights
- Provided by: COMPASS FLORIDA LLC
- Contact: Tess Mullinax
- 727-339-7902

- DMCA Notice
-
DescriptionNon Flood Zone. Non Evacuation Zone. High and Dry. Situated in the desirable Crescent Heights neighborhood, this turn key, DUPLEX offers an exceptional investment or house hacking opportunity. Live in the vacant downstairs unit while the tenant upstairs contributes to your mortgage payments. Recently updated, this property combines classic Florida charm with modern conveniences, featuring new kitchens, bathrooms, and stackable washer/dryers in each unit. Key updates include complete rewiring in 2018 with new electrical panels, energy efficient HVAC mini split units, tankless water heaters, and re plumbingall completed in 2018, with the roof replaced in 2015. The duplex includes: **Upstairs Unit**: A bright one bedroom with a spacious walk in closet, stackable washer/dryer, updated bathroom with elegant marble shower, and an open concept kitchen, dining, and living area. Enjoy the natural light from wall to wall windows and relax on the wrap around second story balcony. Vacant. **Downstairs Unit**: This beautifully remodeled two bedroom unit features a walk in closet with stackable washer/dryer, updated bathroom, and a kitchen with marble countertops, stainless steel appliances, and a marble backsplash. Previously rented at $2,400 per month, its currently ready for occupancy. Vacant. Nestled on a spacious 6,368 square foot lot, the property offers a private yard shaded by Lychee and Oak trees, a large second story deck, and convenient alley access. Just minutes from Downtown St. Petersburg and a short distance to Crescent Lake Park, this gem is perfectly located for enjoying parks, shops, and the Gulf Beaches just 15 minutes away.
Payment Calculator
- Principal & Interest -
- Property Tax $
- Home Insurance $
- HOA Fees $
- Monthly -
Features
Building and Construction
- Covered Spaces: 0.00
- Exterior Features: Balcony
- Living Area: 1608.00
- Roof: Shingle
Garage and Parking
- Garage Spaces: 0.00
- Open Parking Spaces: 0.00
Eco-Communities
- Water Source: Public
Utilities
- Carport Spaces: 0.00
- Cooling: Mini-Split Unit(s)
- Heating: Electric
- Sewer: Public Sewer
- Utilities: Cable Connected, Electricity Connected, Sewer Connected, Water Connected
Finance and Tax Information
- Home Owners Association Fee: 0.00
- Insurance Expense: 0.00
- Net Operating Income: 0.00
- Other Expense: 0.00
- Tax Year: 2024
Other Features
- Appliances: Dishwasher, Dryer, Microwave, Refrigerator, Washer
- Country: US
- Furnished: Unfurnished
- Interior Features: Ceiling Fans(s), Stone Counters, Walk-In Closet(s), Window Treatments
- Legal Description: FLORIDA HEIGHTS LOT 93
- Area Major: 33704 - St Pete/Euclid
- Parcel Number: 07-31-17-28332-000-0930
- Views: 10
Similar Properties
- One Click Broker
- 800.557.8193
- Toll Free: 800.557.8193
- billing@brokeridxsites.com
















































