830 Park Road, ENGLEWOOD, FL 34223
Property Photos
Would you like to sell your home before you purchase this one?
Priced at Only: $759,000
For more Information Call:
Address: 830 Park Road, ENGLEWOOD, FL 34223
Property Location and Similar Properties
- MLS#: D6144879 ( Residential )
- Street Address: 830 Park Road
- Viewed: 5
- Price: $759,000
- Price sqft: $409
- Waterfront: Yes
- Wateraccess: Yes
- Waterfront Type: Canal - Saltwater
- Year Built: 1979
- Bldg sqft: 1854
- Bedrooms: 3
- Total Baths: 3
- Full Baths: 3
- Days On Market: 18
- Additional Information
- Geolocation: 26.968 / -82.3689
- County: SARASOTA
- City: ENGLEWOOD
- Zipcode: 34223
- Subdivision: Lemon Bay Park
- Provided by: TALL PINES REALTY
- Contact: Jeremy Jones
- 941-475-5015

- DMCA Notice
-
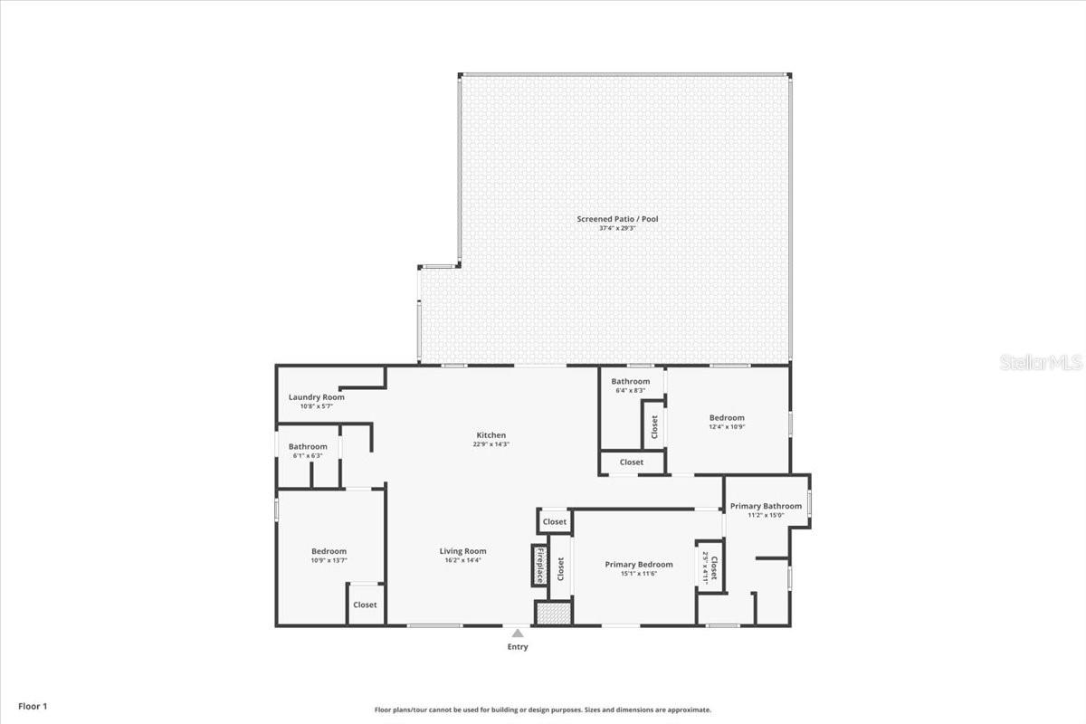
DescriptionExperience the perfect blend of luxury, privacy, and coastal living in this beautifully renovated waterfront home, ideally positioned on sailboat water with no bridges to Lemon Bay. Located just two homes off the bay on an exclusive private lane of only five residences, this property offers exceptional boating access with a private dock, new boat lift, captains walk, additional mooring space for guests or a second vessel, and a convenient small watercraft launch. Tucked away in the heart of Old Englewood, this tranquil retreat is just a short walk, bike ride, or golf cart ride to vibrant Dearborn Streethome to live music, local dining, boutique shops, the weekly Farmers Market, and community events at the new pavilion. Youre also only one block from Snooks Marina waterfront restaurant for relaxed, waterside dining. Inside, the home showcases a meticulous, high end renovation. The open concept living and dining areas are unified by elegant porcelain plank tile, flowing seamlessly into a stunning chefs kitchen. Designed for both style and function, the kitchen features premium stainless steel appliances, a hooded island cooktop, solid wood cabinetry, stone countertops, and a modern tile backsplash. Each of the three bedrooms enjoys its own private, beautifully appointed en suite bathroom, creating a comfortable and private retreat for family and guests. Step outside to an expansive lanai with a picture window screen enclosure framing the resort style pool and spathe ultimate outdoor oasis. Whether youre entertaining, soaking up the Florida sunshine, or unwinding after a day on the water, this inviting space is designed to impress. Major upgrades include: Roof (2018) with full wind mitigation report Impact windows and doors $30k (2023) Boat lift (2024) $35K Captains walk on dock (2024) Pool accessories (2025) Electrical updates (2025, due to storm) Additional features include lush tropical landscaping, an irrigation system on county water, and a generous laundry room with abundant storage. This rare, upgraded waterfront gem offers unmatched charm, convenience, and coastal access. Whether youre an avid boater or simply love being steps from the culture and energy of Old Englewood, this home is a must see. Dont miss the opportunity to own one of the areas most desirable waterfront locations.
Payment Calculator
- Principal & Interest -
- Property Tax $
- Home Insurance $
- HOA Fees $
- Monthly -
Features
Building and Construction
- Covered Spaces: 0.00
- Exterior Features: French Doors, Outdoor Shower, Sliding Doors
- Fencing: Other, Wood
- Flooring: Ceramic Tile
- Living Area: 1503.00
- Roof: Metal
Land Information
- Lot Features: In County, Landscaped, Unpaved
Garage and Parking
- Garage Spaces: 0.00
- Open Parking Spaces: 0.00
Eco-Communities
- Pool Features: Gunite, In Ground, Lighting, Screen Enclosure
- Water Source: Public
Utilities
- Carport Spaces: 0.00
- Cooling: Central Air
- Heating: Central, Electric
- Sewer: Public Sewer
- Utilities: Cable Connected, Public, Water Connected
Finance and Tax Information
- Home Owners Association Fee: 0.00
- Insurance Expense: 0.00
- Net Operating Income: 0.00
- Other Expense: 0.00
- Tax Year: 2025
Other Features
- Appliances: Dishwasher, Disposal, Dryer, Electric Water Heater, Microwave, Range, Refrigerator, Washer
- Country: US
- Furnished: Negotiable
- Interior Features: Ceiling Fans(s), L Dining, Living Room/Dining Room Combo, Open Floorplan, Solid Wood Cabinets, Split Bedroom, Stone Counters, Thermostat, Window Treatments
- Legal Description: E 3/4 LOT 4 & W 1/2 LOT 5 LEMON BAY PARK
- Levels: One
- Area Major: 34223 - Englewood
- Occupant Type: Owner
- Parcel Number: 0497040024
- Style: Florida, Ranch
- View: Garden, Pool, Trees/Woods, Water
- Zoning Code: RSF2
Similar Properties
Nearby Subdivisions
0000
1309 Resteiner Heights
2217 Tropical Breeze Estates
Acreage
Admirals Point Condo
Allenwood
Alston Haste
Arlington Cove
Artist Acres
Artists Enclave
Bay View Manor
Bay Vista Blvd
Bay Vista Blvd Add 03
Bayview Gardens
Bayvista Boulevardenglewood
Boca Royale
Boca Royale Englewood Golf Vi
Boca Royale Ph 1
Boca Royale Ph 1 Un 14
Boca Royale Ph 2 3
Boca Royale Ph 2 Un 12
Boca Royale Un 12
Boca Royale Un 12 Ph 2
Boca Royale Un 13
Boca Royale Un 16
Boca Royale Un 17
Boca Royaleenglewood Golf Vill
Breezewood
Brucewood
Brucewood Bayou
Caroll Wood Estates
Chadwicks Resub 1
Clintwood Acres
Creek Lane Sub
Dalelake Estates
Deer Creek Cove
Deercreek Park
East Englewood
Eden Harbor
Englewood
Englewood Gardens
Englewood Homeacres 1st Add
Englewood Isles
Englewood Isles Sub
Englewood Of
Englewood Park Amd Of
Englewood Pines
Englewood Shores
Englewood Shores Sub
Englewood Sub Of Grove Lt 90
Englewood View
Englewwod View
Foxwood
Glens Of Park Forest
Gulf Coast Groves Sub
Gulf Coast Park
Gulfridge That Pt
H A Ainger
Heasley Thomas E Sub
Horton Estates
La Reba Sub
Lakes At Park Forest
Lammps 1st Add
Lamps Add 01
Lasbury Pineacres Englewood
Lemon Bay Estate 01
Lemon Bay Estates
Lemon Bay Haven
Lemon Bay Park
Longlake Estates
Manor Haven
Mccall Lake
Not Applicable
Overbrook Gardens
Oxford Manor
Oxford Manor 3rd Add
Park Forest
Park Forest Ph 1
Park Forest Ph 5
Park Forest Ph 6a
Paulsen Place
Pelican Shores
Piccadilly Ests
Pine Haven
Pine Lake Dev
Pine Manor
Pineland Sub
Point Of Pines
Point Pines
Port Charlotte Plaza Sec 07
Prospect Park Sub Of Blk 15
Prospect Park Sub Of Blk 5
Punta Nova 1st Add
Quails Run I
Riverside
Riverside Park
Rock Creek Park
Rock Creek Park 3rd Add
S J Chadwicks
Shores At Stillwater
Sj Chadwicks Ne
Smithfield Sub
South Wind Harbor
Stanley Lampp Sub First Add
Stillwater
Sunset Bay
The S 88.6 Ft To The N 974.6 F
Tyler Darling Add 01
Whispering Pines
- One Click Broker
- 800.557.8193
- Toll Free: 800.557.8193
- billing@brokeridxsites.com
































































