1221 242nd Drive, NEWBERRY, FL 32669
Property Photos
Would you like to sell your home before you purchase this one?
Priced at Only: $354,070
For more Information Call:
Address: 1221 242nd Drive, NEWBERRY, FL 32669
Property Location and Similar Properties
- MLS#: OM714124 ( Residential )
- Street Address: 1221 242nd Drive
- Viewed: 16
- Price: $354,070
- Price sqft: $181
- Waterfront: No
- Year Built: 2025
- Bldg sqft: 1956
- Bedrooms: 4
- Total Baths: 3
- Full Baths: 3
- Garage / Parking Spaces: 3
- Days On Market: 15
- Additional Information
- Geolocation: 29.6738 / -82.6043
- County: ALACHUA
- City: NEWBERRY
- Zipcode: 32669
- Subdivision: Avalon Woods
- Elementary School: Newberry Elementary School AL
- Middle School: Oak View Middle School
- High School: Newberry High School AL
- Provided by: DR HORTON REALTY OF WEST CENTRAL FLORIDA
- Contact: Jessica Cruz
- 352-414-3365

- DMCA Notice
-
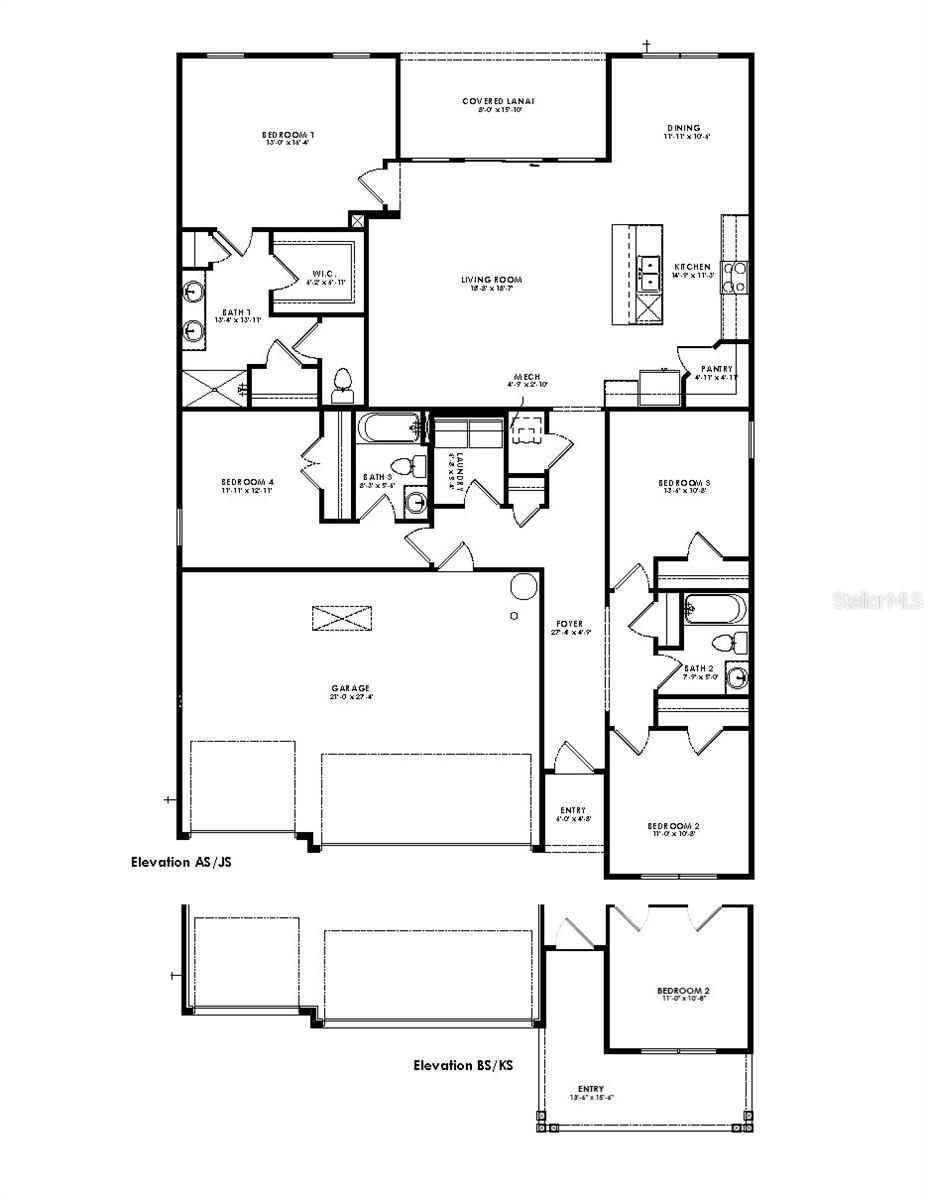
DescriptionOne or more photo(s) has been virtually staged. Under Construction. The Madison is a thoughtfully designed 3 car garage home with an inviting open concept layout perfect for all families. As you enter the foyer, you're greeted with two guest bedrooms and a shared guest bathroom. Across the hallway you will find the laundry room, linen closet, and a third guest bedroom complete with an ensuite bathroom. Heading into the kitchen, there is a large kitchen island with quartz countertops, stainless steel appliances, and a spacious walk in pantry. The kitchen overlooks the great room and dining area flowing into the outdoor covered lanai. Next to the living room is the primary bedroom with a double vanity, quartz countertops, and two closets. Bedroom four has an ensuite bathroom and is located next to the designated laundry room. The Madison is the epitome of modern living and includes a state of the art smart home system. Pictures, photographs, colors, features, and sizes are for illustration purposes only and will vary from the homes as built. Home and community information including pricing, included features, terms, availability and amenities are subject to change and prior sale at any time without notice or obligation. CRC057592.
Payment Calculator
- Principal & Interest -
- Property Tax $
- Home Insurance $
- HOA Fees $
- Monthly -
Features
Building and Construction
- Builder Model: Madison
- Builder Name: DR Horton INC
- Covered Spaces: 0.00
- Flooring: Carpet, Luxury Vinyl
- Living Area: 1956.00
- Roof: Shingle
Property Information
- Property Condition: Under Construction
School Information
- High School: Newberry High School-AL
- Middle School: Oak View Middle School
- School Elementary: Newberry Elementary School-AL
Garage and Parking
- Garage Spaces: 3.00
- Open Parking Spaces: 0.00
Eco-Communities
- Water Source: Public
Utilities
- Carport Spaces: 0.00
- Cooling: Central Air
- Heating: Central, Heat Pump
- Pets Allowed: Yes
- Sewer: Public Sewer
- Utilities: Other
Finance and Tax Information
- Home Owners Association Fee: 400.00
- Insurance Expense: 0.00
- Net Operating Income: 0.00
- Other Expense: 0.00
- Tax Year: 2024
Other Features
- Appliances: Dishwasher, Microwave, Range
- Association Name: Guardian Association Management
- Country: US
- Furnished: Unfurnished
- Interior Features: Open Floorplan
- Legal Description: AVALON WOODS PH 4A PB 39 PG 92 LOT 505
- Levels: One
- Area Major: 32669 - Newberry
- Occupant Type: Vacant
- Parcel Number: 01874-400-505
- Views: 16
- Zoning Code: PUD
Similar Properties
Nearby Subdivisions
Arbor Greens Ph 1
Arbor Greens Ph Ii
Arrowhead Point Newberry
Avalon Woods
Avalon Woods Ph 1a Pb 37 Pg 70
Avalon Woods Ph 3 Pb 39 Pg 14
Barrington Pb 38 Pg 85
Belmont Cluster Dev Ph 3
Broken Arrow
Caraway
Cedar Estates Of Newberry
Chapman Whites
Charleston Ph Ii
Countryway
Countryway Of Newberry Ph I
Countryway Of Newberry Ph Iv P
Countryway Of Newberry Ph V Pb
Countryway Town Square
Fairway Pointe At West End
Fallport Acres
Farmsworth Tioga Heights
Half Moon Station
Laureate Village
Laureate Village Ph 1
Meadowview
Newberry Corners Ph Ia
Newberry Oaks Ph 5
Newberry Oaks Ph 7
Newberry Oaks Ph 8
Newberry Place
Newberry Waltons Add
Newtown 1894 Ph 2
Nippers Add
Oak View Village
Oak View Village Ph Ii
Patio Homes Of West End
Replat Sylvania Terrace
Sandy Pines Estates
Steeplechase Farms
Tara Estates Pb 37 Pg 46
The Grove
The Villas Of West End
Town Of Tioga
Town Of Tioga Ph 18 Pb 34 Pg 8
Town Of Tioga Ph 5
Town Of Tioga Ph 8
Villas At Country Way
Villas Of West End
West End
West End Estates
Wyndsong
Wyndsong Manor
- One Click Broker
- 800.557.8193
- Toll Free: 800.557.8193
- billing@brokeridxsites.com


























