124 824th Street, OLD TOWN, FL 32680
Active
Property Photos
Would you like to sell your home before you purchase this one?
Priced at Only: $675,000
For more Information Call:
Address: 124 824th Street, OLD TOWN, FL 32680
Property Location and Similar Properties
- MLS#: W7884556 ( Residential )
- Street Address: 124 824th Street
- Viewed: 3
- Price: $675,000
- Price sqft: $223
- Waterfront: Yes
- Wateraccess: Yes
- Waterfront Type: River Front
- Year Built: 1989
- Bldg sqft: 3021
- Bedrooms: 2
- Total Baths: 2
- Full Baths: 2
- Garage / Parking Spaces: 3
- Days On Market: 4
- Additional Information
- Geolocation: 29.5941 / -82.9624
- County: DIXIE
- City: OLD TOWN
- Zipcode: 32680
- Subdivision: Suwannee River
- Provided by: NATURE COAST REAL ESTATE
- Contact: Nancy Zubler
- 352-688-7778

- DMCA Notice
-
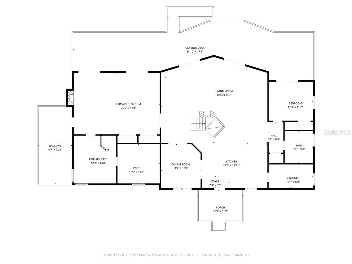
DescriptionThis spectacular CUSTOM home is one to see!!!! SO many features that make this home special. The county is inaccurate on size and year built. Home was built by seller, the original home was a vacation home built in 1989, the addition was 2006 and the certificate of occupancy is dated 2006. 2296sf under roof, total footprint of home 3021sf! 157 feet of waterfront on the Suwannee River! Huge cathedral ceilings + huge master bedroom + enormous walk in closet! + a beautiful loft that can be either another (3rd!) bedroom or an office! + Split Floor Plan + 2 A/C units! + FIVE French Doors facing the Suwannee! + THREE Fireplaces!! + 2 Spa Tubs AND a gorgeous Walk In Shower! + the Master Suite with Pecky Cypress has 720sf with a Privacy Porch! + BEAUTFUL Oak Flooring! + a Gourmet Kitchen with a DOUBLE OVEN! + NO HOA!! + Gutters with leaf guard + City Water AND a well for irrigation if wanted! Seller has Survey AND Elevation Certificate!
Payment Calculator
- Principal & Interest -
- Property Tax $
- Home Insurance $
- HOA Fees $
- Monthly -
Features
Building and Construction
- Covered Spaces: 0.00
- Exterior Features: French Doors
- Flooring: Wood
- Living Area: 2966.00
- Roof: Metal
Property Information
- Property Condition: Completed
Land Information
- Lot Features: Cleared, In County
Garage and Parking
- Garage Spaces: 0.00
- Open Parking Spaces: 0.00
Eco-Communities
- Water Source: Public, Well
Utilities
- Carport Spaces: 3.00
- Cooling: Central Air
- Heating: Central, Electric
- Pets Allowed: Yes
- Sewer: Septic Tank
- Utilities: Cable Available, Electricity Available, Propane, Sprinkler Well, Water Connected
Finance and Tax Information
- Home Owners Association Fee: 0.00
- Insurance Expense: 0.00
- Net Operating Income: 0.00
- Other Expense: 0.00
- Tax Year: 2025
Other Features
- Accessibility Features: Accessible Elevator Installed
- Appliances: Dishwasher, Dryer, Electric Water Heater, Microwave, Range, Refrigerator, Washer
- Country: US
- Furnished: Negotiable
- Interior Features: Cathedral Ceiling(s), Ceiling Fans(s), Crown Molding, Eat-in Kitchen, Elevator, High Ceilings, Kitchen/Family Room Combo, Primary Bedroom Main Floor, Solid Wood Cabinets, Split Bedroom, Stone Counters, Tray Ceiling(s), Walk-In Closet(s)
- Legal Description: 3.75 ACRES COM NW CR OF GOV LOT 2 RN E 59 FT S 149.10 FT E 425FT S 87.34 FT S 45D E 600.61 FT S 53D E 466.41 FT S 11D E 308.90 FT S 3D E 186.57 FT S 15D E 184.90 FT S 8D E 388.80 FT S 18D E 222.56 FT S 3D E 253.60 FT S 15D E 205.83 FT S 21D W 162.71 FT S 56D W 85.97 FT S 26D E 184.25 FT S 15D W 500.74 FT S 42D E 390.61 FT S 21D E 269.21 FT S 45D E 153.08 FT S 16D E 249.25 FT S 21D E 224.68 FT N 44D E 274.80 FT TO POB CONT N 44D E 696.25 FT M/L TO WATERS EDGE OF SUW RIV RN NLY ALG WATERS EDGE 157 .5 FT M/L RN S 44D W 731.37 FT S 14D E 145.47 FT TO POB SHAWOOD PROP OR BK 76 PG 744-745 ALSO PROP DESC IN ORB 76 P 745 OR BK 96 PG 387-388 ORB 100 P 12 & ORB 101 P 807 ORB 273 P 411 ORB 523 P 657(DC-MALCOLM)
- Levels: Two
- Area Major: 32680 - Old Town
- Occupant Type: Owner
- Parcel Number: 24-10-13-0000-487-82801
- Possession: Close Of Escrow
- Style: Elevated
- View: Trees/Woods
- Zoning Code: RES
Similar Properties
- One Click Broker
- 800.557.8193
- Toll Free: 800.557.8193
- billing@brokeridxsites.com




















































