9738 Summer Creek Drive, Panama City, FL 32409
Property Photos
Would you like to sell your home before you purchase this one?
Priced at Only: $169,000
For more Information Call:
Address: 9738 Summer Creek Drive, Panama City, FL 32409
Property Location and Similar Properties
- MLS#: 770857 ( Residential )
- Street Address: 9738 Summer Creek Drive
- Viewed: 16
- Price: $169,000
- Price sqft: $0
- Waterfront: Yes
- Wateraccess: Yes
- Waterfront Type: Creek
- Year Built: Not Available
- Bldg sqft: 0
- Days On Market: 262
- Additional Information
- Geolocation: 30.3311 / -85.5864
- County: BAY
- City: Panama City
- Zipcode: 32409
- Subdivision: Cedar Creek Ph Ii
- Elementary School: Deane Bozeman
- Middle School: Deane Bozeman
- High School: Deane Bozeman
- Provided by: Counts Real Estate Group
- DMCA Notice
-
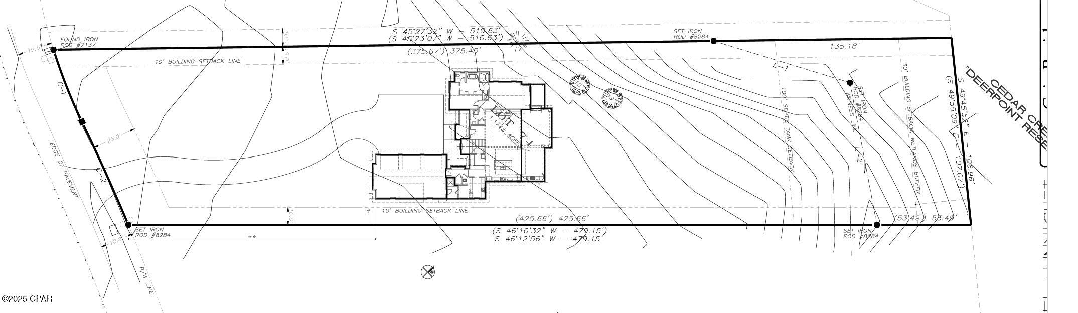
DescriptionLots of Trees and overlooking creek and conservation area. Superior Location!!! Discover the perfect opportunity to build your dream home in the highly sought after community of Cedar Creek in Southport, Florida. This prime vacant land parcel offers an ideal blend of privacy and convenience, located right next door to the community's spacious clubhouse, with a beautiful wooded buffer providing a serene, natural barrier. Enjoy easy access to the clubhouse for hosting parties, family gatherings, or community events. The clubhouse features ample space for entertaining, a cozy firepit for relaxing evenings, and a private dock perfect for enjoying the waterfront lifestyle. Nestled in a peaceful and well maintained neighborhood, this lot provides the perfect canvas for your custom home while offering a lifestyle enriched by the amenities of Cedar Creek. Don't miss this rare opportunity to own a piece of paradise in one of Southport's most desirable communities!' Perfect for those who enjoy a canoe ride or paddle boarding. Custom Homes Plans by Michael Hunnicut also available. See renderings in Photos. Please inquire.
Payment Calculator
- Principal & Interest -
- Property Tax $
- Home Insurance $
- HOA Fees $
- Monthly -
Features
Building and Construction
- Covered Spaces: 0.00
- Living Area: 0.00
Land Information
- Lot Features: Paved
School Information
- High School: Deane Bozeman
- Middle School: Deane Bozeman
- School Elementary: Deane Bozeman
Garage and Parking
- Garage Spaces: 0.00
- Open Parking Spaces: 0.00
Utilities
- Carport Spaces: 0.00
Finance and Tax Information
- Home Owners Association Fee: 0.00
- Insurance Expense: 0.00
- Net Operating Income: 0.00
- Other Expense: 0.00
- Pet Deposit: 0.00
- Security Deposit: 0.00
- Trash Expense: 0.00
Other Features
- Legal Description: CEDAR CREEK PH II LOT 74 ORB 4207 P 132
- Area Major: 04 - Bay County - North
- Parcel Number: 07611-300-038
- The Range: 0.00
- Views: 16
Similar Properties
Nearby Subdivisions
[no Recorded Subdiv]
Bream Pond
Burnt Mill Creek
Cedar Creek At Deerpoint Lake
Cedar Creek Chase
Cedar Creek Chase Ph 1
Cedar Creek Heights
Cedar Creek Ph Ii
Deerpoint Lake Heights
Fanning Bayou
Hodges Bayou Plantation 1
Lake Merial
Lake Merial Phase One
Moon Court
No Named Subdivision
Osprey Point
Southport
- One Click Broker
- 800.557.8193
- Toll Free: 800.557.8193
- billing@brokeridxsites.com


