Address Not Provided
Active
Property Photos
Would you like to sell your home before you purchase this one?
Priced at Only: $249,900
For more Information Call:
Address: Address Not Provided
Property Location and Similar Properties
- MLS#: O6375288 ( Residential )
- Street Address: Address Not Provided
- Viewed: 1
- Price: $249,900
- Price sqft: $261
- Waterfront: Yes
- Wateraccess: Yes
- Waterfront Type: Lake Front
- Year Built: 1969
- Bldg sqft: 956
- Bedrooms: 2
- Total Baths: 2
- Full Baths: 2
- Days On Market: 2
- Additional Information
- County: ORANGE
- City: WINTER PARK
- Zipcode: 32789
- Subdivision: Lakeside Manor Apts Condo
- Building: Lakeside Manor Apts Condo
- Elementary School: Killarney Elem
- Middle School: College Park Middle
- High School: Edgewater High
- Provided by: HOMEVEST REALTY
- Contact: Lora King
- 407-897-5400

- DMCA Notice
-
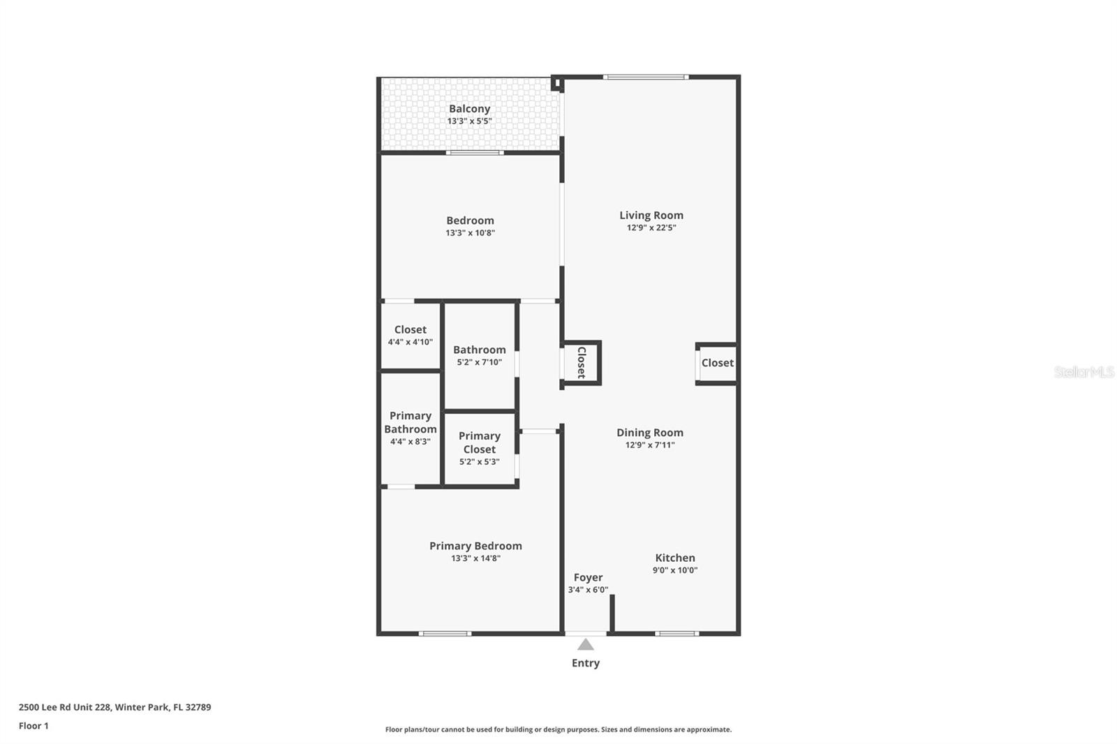
DescriptionAttention lake enthusiasts! This is your opportunity to enjoy true waterfront living without the cost or maintenance typically associated with it. Located on beautiful Lake Killarney in sought after Winter Park you will enjoy an array of amenities including a private boat ramp, a large open boat dock where you can feed the fish and turtles, picnic areas, clubhouse and resort style community pool overlooking the water. This rare 2 bedroom, 2 bath residence offers stunning lake views from the living room, bedroom, and private balcony, creating a peaceful retreat youll love coming home to. The home features thoughtful upgrades throughout, including a beautifully updated kitchen with upgraded appliances, induction range with air fryer, soft close cabinetry and drawers, and a large pantry closet. Crown molding and recessed lighting enhance the space and highlight the luxury vinyl plank flooring throughout. Additional improvements include a new A/C system and tankless water heater, helping to keep the home energy efficient. The community also offers two on site laundry facilities with private storage units for added convenience. Perfectly situated in highly desirable Winter Park, youre just minutes from shopping, dining, and everyday essentials. This quiet lakeside community is only steps away from your favorite coffee shop or a casual evening drink. Wake up to lake views, unwind on your private balcony, and enjoy the relaxed Winter Park lifestyle youve been dreaming of. Opportunities like this are rareschedule your private showing today and experience Lake Killarney living for yourself.
Payment Calculator
- Principal & Interest -
- Property Tax $
- Home Insurance $
- HOA Fees $
- Monthly -
Features
Building and Construction
- Covered Spaces: 0.00
- Exterior Features: Balcony
- Flooring: Luxury Vinyl
- Living Area: 956.00
- Other Structures: Storage
- Roof: Shingle
Land Information
- Lot Features: Near Public Transit
School Information
- High School: Edgewater High
- Middle School: College Park Middle
- School Elementary: Killarney Elem
Garage and Parking
- Garage Spaces: 0.00
- Open Parking Spaces: 0.00
- Parking Features: Assigned, None
Eco-Communities
- Water Source: Public
Utilities
- Carport Spaces: 0.00
- Cooling: Central Air
- Heating: Central
- Pets Allowed: No
- Sewer: Public Sewer
- Utilities: Cable Available, Electricity Connected, Public, Sewer Connected, Water Connected
Amenities
- Association Amenities: Clubhouse, Laundry, Lobby Key Required, Optional Additional Fees, Pool, Storage
Finance and Tax Information
- Home Owners Association Fee Includes: Pool, Maintenance Structure, Maintenance Grounds, Recreational Facilities, Sewer, Trash, Water
- Home Owners Association Fee: 0.00
- Insurance Expense: 0.00
- Net Operating Income: 0.00
- Other Expense: 0.00
- Tax Year: 2025
Other Features
- Appliances: Dishwasher, Disposal, Microwave, Range, Refrigerator, Tankless Water Heater
- Association Name: Soaring Management, LLC
- Association Phone: 407-734-3315
- Country: US
- Furnished: Unfurnished
- Interior Features: Ceiling Fans(s), Crown Molding, Kitchen/Family Room Combo, Open Floorplan, Split Bedroom, Walk-In Closet(s), Window Treatments
- Legal Description: LAKESIDE MANOR APTS CONDO CB 5/19 UNIT 228
- Levels: One
- Area Major: 32789 - Winter Park
- Occupant Type: Owner
- Parcel Number: 01-22-29-4838-02-280
- Possession: Close Of Escrow
- View: Pool, Water
- Zoning Code: R-3
Similar Properties
Nearby Subdivisions
Alabama Condo
Aragon Condo
Chateaux Du Lac
Cloisters Condo
Killarney Bay Condo
Lachen House Condo
Lake Killarney Condo
Lake Virginia Condo
Lakeside Manor Apts Condo
Lakeside Manor Condominium Ass
Mead Garden
Park Aire Condo
Perle Du Lac
Phillips Circle Rep
Quarters At Winter Park Condo
Residences
Terazzo Del Sol Condo Assn Inc
Trovillion Condo
Waterfall Cove
Waterfall Cove At Winter Park
Waterfall Covewinter Park
Whispering Waters
Whispering Watersphillips Circ
- One Click Broker
- 800.557.8193
- Toll Free: 800.557.8193
- billing@brokeridxsites.com











































